10 VPO Y L. COMERCIAL

  • UBICACIÓN Lavapiés. Madrid
  • FECHA 2000
  • PROMOTOR EMVS. EMPRESA MUNICIPAL DE LA VIVIENDA Y SUELO DE MADRID
  • EN COLABORACIÓN CON Francisco Domouso
  • FOTOGRAFÍA Ángel Baltanás

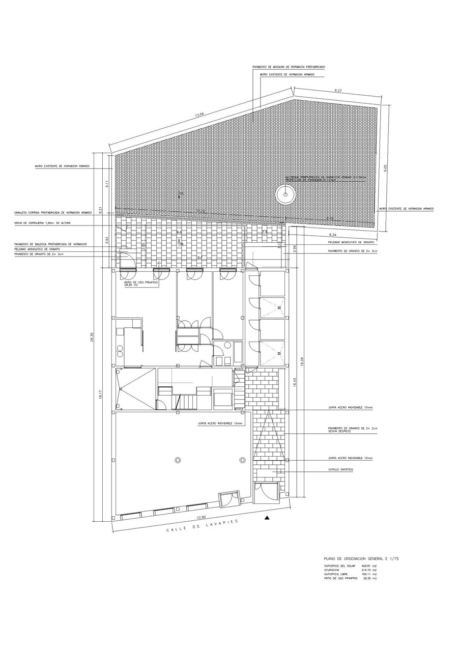
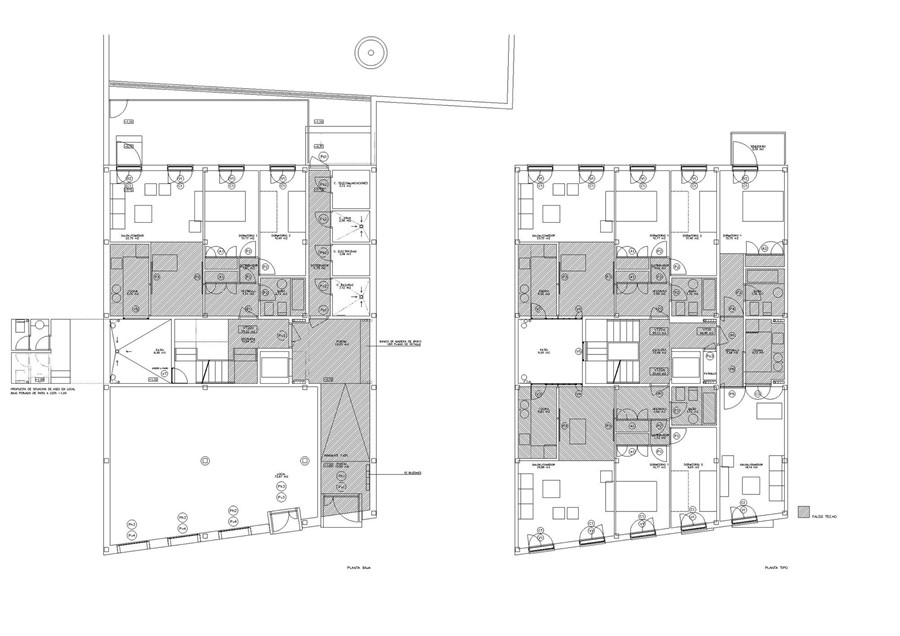
La parcela donde se ubica el edificio tiene forma de L con fachada a la calle Lavapiés. Está incluida dentro del primer recinto de expansión del Casco Histórico, formado por fincas entre medianerías de pequeña fachada que configuran edificios en manzana cerrada.

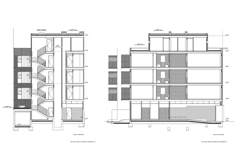
Es un edificio destinado a vivienda colectiva de cuatro plantas de altura, con cinco crujías sensiblemente paralelas a la calle Lavapiés y tres viviendas por planta de uno y dos dormitorios: una que da al patio de dos dormitorios, otra exterior a la calle Lavapiés, de dos dormitorios, y una tercera pasante de un dormitorio. Las viviendas se articulan en torno a un patio y al núcleo de comunicaciones verticales situados en la crujía central.

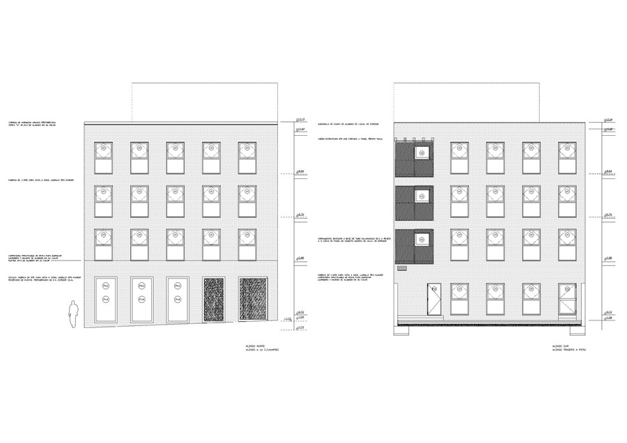
El edificio pretende integrarse tipológicamente en su entorno utilizando un lenguaje arquitectónico clásico, para ello se han proyectado elementos como el zócalo de piedra, los huecos balconeros con carpintería de madera, que se repiten de manera rítmica en el alzado, y el acabado de la fachada en estuco blanco.

El zócalo de granito gris claro, con recercados profundos, aportan materialidad y consistencia al mismo. El remate superior del zócalo, un listelo de granito a modo de imposta, señala el dintel del hueco de acceso del edificio y el de los huecos del local comercial.

Todos los huecos de las viviendas, grandes y luminosos, son iguales, repitiéndose de manera regularen toda la fachada. La carpintería es de madera de iroko y se sitúa a haces exteriores de la fachada, rematada con baberos y lagrimeros generosos.

El estucado de la fachada es blanco liso rematado por una albarda gris de piedra artificial. La fachada al patio interior es similar a la fachada principal.

El edificio, como respuesta al entorno urbano, debía de plasmarse en un edificio clásico, sólido,al servicio de la ciudad, sin gestos de "diseño" ni guiños a modas arquitectónicas pasajeras y poco consistentes. Por ello, se trata de un edificio claro y sereno. El zócalo de piedra, la fachada de estuco blanco y la carpintería de madera integran al edificio en la trama urbana, sin renunciar por ello a una intención arquitectónica proyectiva clara y precisa, que se ha plasmado desde la concepción global del edificio al detalle de pequeña escala,como , por ejemplo, en las carpinterías o la cerrajería.