103 VIVIENDAS EN ALQUILER

  • UBICACIÓN TORREJÓN DE ARDOZ
  • FECHA 2021
  • PROMOTOR AEDAS HOMES

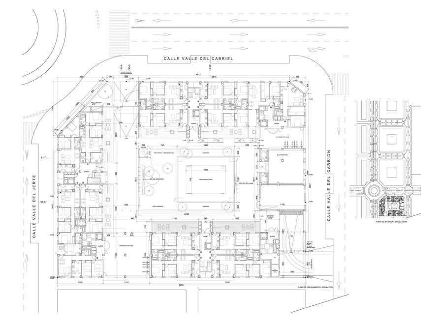
Entre las tipologías permitidas por la ordenanza del Plan Parcial de Torrejón de Ardoz se ha optado por la Ordenación en Manzana Cerrada.

Los factores que han llevado a esta decisión son: la superficie de la parcela respecto a su alta edificabilidad, la morfología de la parcela y los chaflanes, la elevada densidad de viviendas asignadas a la parcela y la necesidad de optimizar el rendimiento de los núcleos de comunicación respecto a las viviendas servidas.

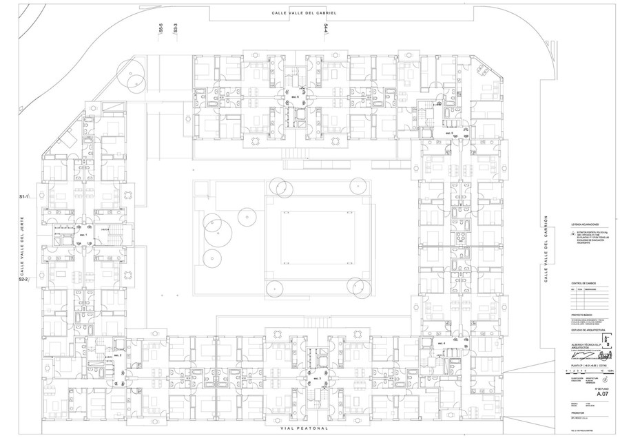
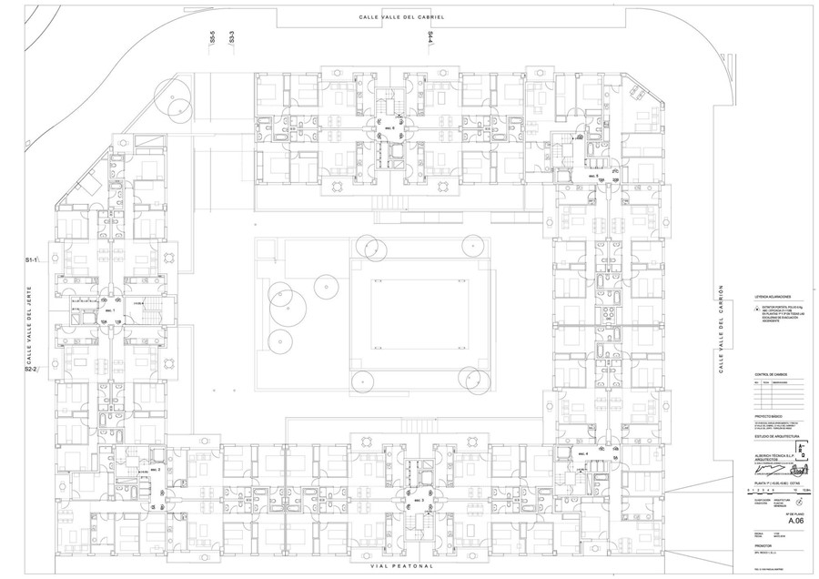
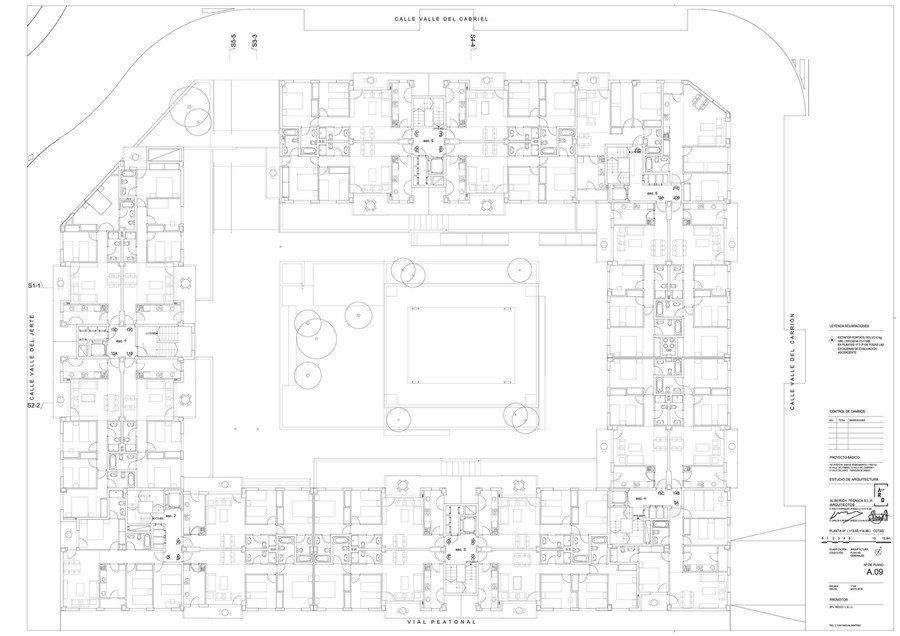
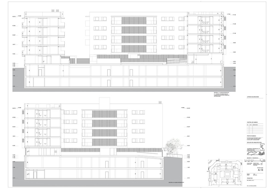
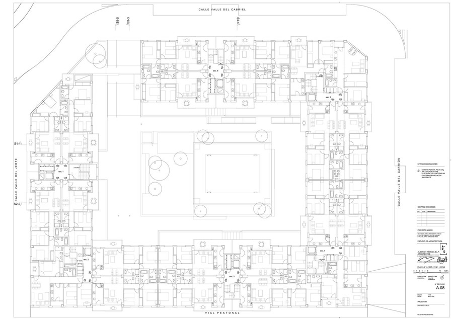
El resultado volumétrico es un cuerpo de cinco plantas sobre rasante y un fondo edificado de 11,50 m., apoyado el desarrollo de la alineación exterior, con excepción de la esquina-chaflán a la rotonda de alineación NO obligatoria, donde no se cierra el volumen de la manzana, dejando en su interior un generoso patio de dimensiones 39,40 x 26,70 m., que permite el soleamiento de las fachadas interiores.

El acceso peatonal al interior de la manzana se hace desde la esquina de la calle Valle del Cabriel con la calle Valle del Jerte, cerrado por una cancela que eventualmente se abrirá al paso de los vehículos de extinción de incendios. Al interior del patio abren los seis portales para acceso a las viviendas que componen la promoción. Los núcleos de comunicación compuestos por ascensor y escalera. Las viviendas se agrupan alrededor de los núcleos en número de tres o cuatro viviendas, excepto la escalera E-C que únicamente sirve a dos. En el centro del patio manzana se ubica una piscina y un conjunto de juegos infantiles. Para el uso comunitario también se ha proyectado una sala de reuniones susceptible para celebración de eventos, o también gimnasio.

De acuerdo con la propuesta del promotor, se han proyectado 31 viviendas, con programa 3dormitorios y 72 con programa 2 dormitorios. El carácter de promoción en alquiler y alcanzar un bajo coeficiente en la relación, han resultado ser factores determinantes en la redacción del proyecto.

Todas las viviendas, salvo en lo que respecta al número de dormitorios, tienen el mismo programa, cocina, estancia-comedor, dormitorio principal y uno o dos dormitorios secundarios, un cuarto de baño que abre al dormitorio principal y otro abierto al pasillo de distribución. Las estancias se abren a terrazas y las cocinas a tendederos. Las viviendas situadas en planta baja a interior del patio manzana tienen terrazas más amplias que las de plantas superiores.