Proyectos
CULTURAL / EDUCACIONAL
TERCIARIO / SALUD
INFRAESTRUCTURA
REHABILITACIÓN / INTERIORISMO
RESIDENCIAL UNIFAMILIAR
RESIDENCIAL PLURIFAMILIAR
Estudio
Socios
Equipo
Perfil
Premios
Colaboradores
Noticias
Publicaciones
Contacto
ES
EN
facebook
linkedin
pinterest
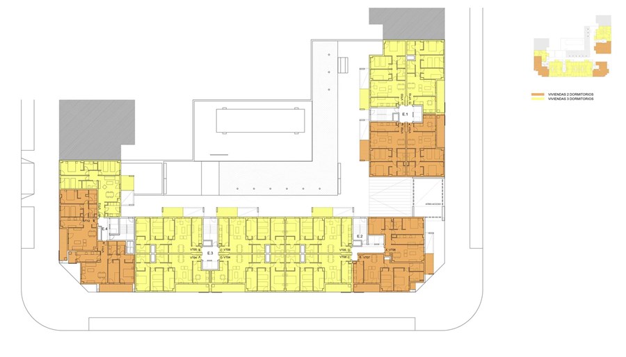
107 VPPB VALDECARROS
Share
facebook
twitter
pinterest
UBICACIÓN
VALDECARROS. MADRID
FECHA
2025
PROMOTOR
GRUPO IBOSA
Proyecto de 107 viviendas de Protección Pública Básica, de 2 y 3 dormitorios con plaza de garaje, trastero y zonas comunes.
atrás
alante