11 VL PLAZA DEL ESTE

  • UBICACIÓN MADRID
  • FECHA 2018
  • PROMOTOR LARCOVI S.A.L.

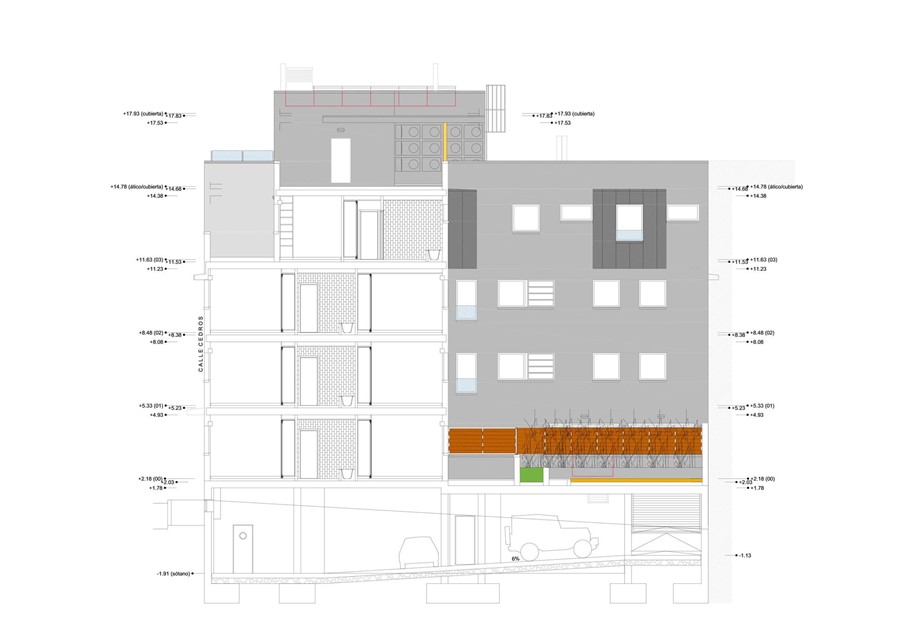
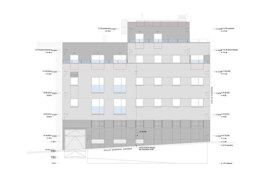
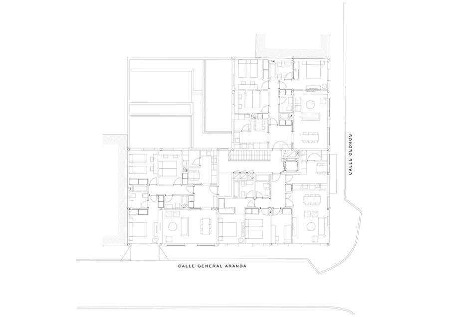
La normativa de aplicación es muy restrictiva, sin posibilidad de interpretaciones o extras que permitan la manipulación del volumen máximo edificable en beneficio de soluciones más esponjadas, de más variada volumetría y rotura del conjunto. Cumplir con todos los condicionantes de la normativa y ordenanzas, la forma de la parcela, de las calles y de las viviendas y sus patios colindantes,  condicionan enormemente el resultado y el volumen permitido que ha de agotarse para cumplir con el cuadro de necesidades y usos que la propiedad nos traslada.

El cumplimiento estricto de las necesidades programáticas solicitadas por la propiedad, hace necesaria la aplicación inclemente de la norma impuesta.

Por todo ello  la vivienda tipo y sus futuros ocupantes se convierten en nuestro único objetivo. Esto quiere decir que, en esta ocasión, abordamos la propuesta desde el tipo.