110+114 VIV ARGANDA DEL REY

  • UBICACIÓN ARGANDA DEL REY
  • FECHA 2020
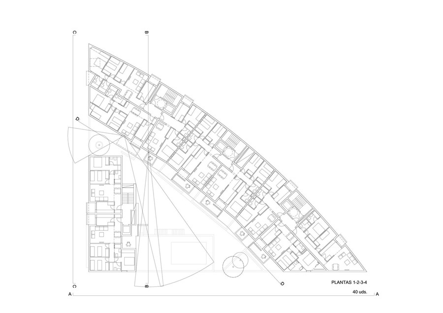
Estudio y proyecto básico de dos promociones de 110 y 114 viviviendas en Arganda del Rey. 

El principal reto del proyecto es encontrar una distribución compatible con unas parcelas de geometría compleja y difícil desarrollo en el ámbito residencial.

La falta de superficie libre en planta baja obliga a encajar algunas de las amenities en plantas intermedias y cubierta.