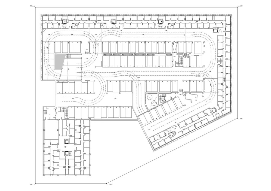
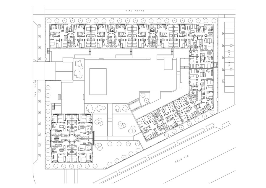
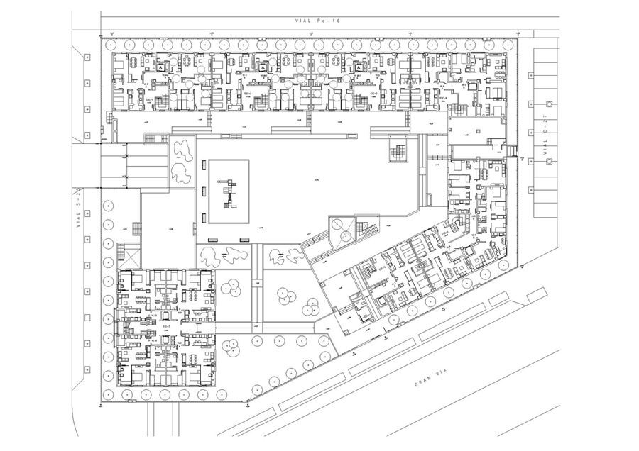
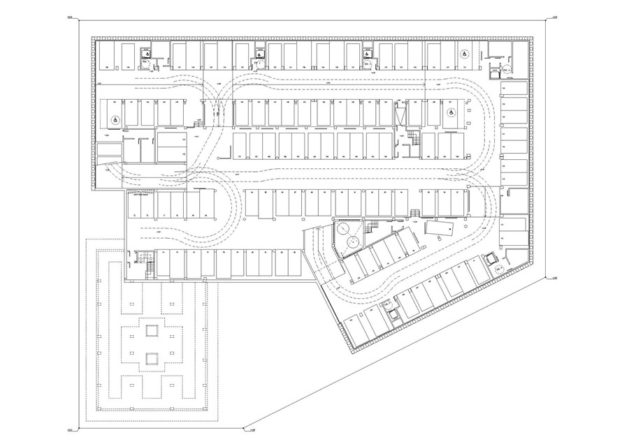
114+114 VPP ALCORCÓN

  • UBICACIÓN Alcorcón. Madrid
  • FECHA 2009
  • PROMOTOR EMGIASA

La construcción de estos edificios optimiza la que ha sido casi convención en la vivienda protegida en Madrid durante los últimos 20 años: estructura portante de hormigón armado, cerramiento de fábrica de ladrillo perforado cocido a alta temperatura, transdosado hacia el interior con 6 cm de lana de roca, cámara de aire y revestimiento interior de placa de yeso laminado.

Los huecos con carpintería de aluminio lacado con rotura de puente térmico y dos hojas de vidrio con aire en su interior también son, hoy, convención en Madrid.