13 VL COLMENAR VIEJO

  • UBICACIÓN COLMENAR VIEJO. MADRID
  • FECHA 2018
  • PROMOTOR EMPRESA MUNICIPAL DE LA VIVIENDA COLMENAR VIEJO
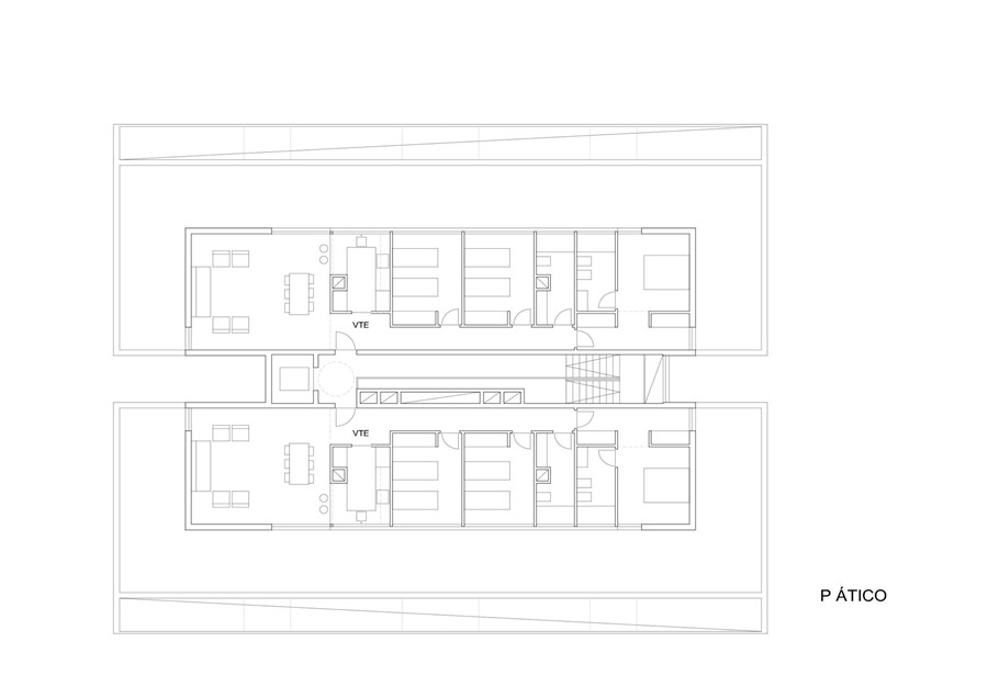
El edificio que se propone se compone de tres plantas sobre rasante, de forma sensiblemente rectangular, y una planta ático, retranqueada, como mínimo 3,00 m., en todo el perímetro de la última planta.

Bajo rasante se distribuye la dotación de plazas de garaje (26 plazas) y trasteros (13 uds.) exigidas en el Pliego de Condiciones del Concurso.

En planta baja se distribuyen dos viviendas (VT-A y VT-B), del mismo programa (3 dorm.) diferenciándose únicamente en la superficie exterior, y una vivienda (VT-C-MV) adaptada a personas que necesiten silla de ruedas o cualquier tipo de discapacidad.
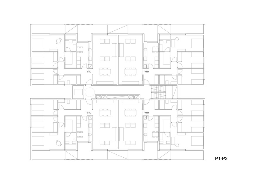
En planta primera y segunda se distribuyen cuatro viviendas (VT-D), del mismo programa (3 dorm.) y superficie.

En planta ático se distribuyen dos viviendas (VT-E), también del mismo programa (3 dorm.) y superficie.

Urbanización de la parcela:

Piscina de lámina de agua de 84,92 m2 equipada con los aseos reglamentarios para dicha superficie, adaptados para personas con problemas de movilidad, situados en la planta baja.

Ajardinamiento de la superficie sobre terreno natural, con árboles y plantas autóctonas y de escasa exigencia hídrica. Pavimentación de la superficie sobre planta sótano.