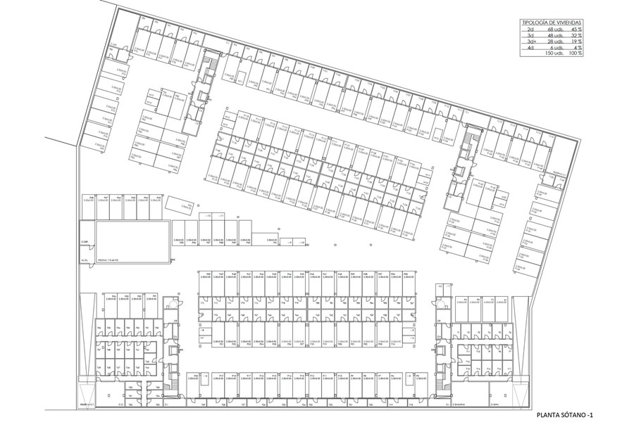
150 VL VALLADOLID

  • UBICACIÓN VALLADOLID
  • FECHA 2025
  • PROMOTOR NEINOR HOMES
Promoción privada de 150 viviendas libres en una parcela situada en Arroyo de la Encomienda.

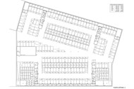
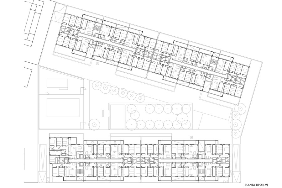
El proyecto se organiza en dos bloques de seis plantas más ático, alineados a las dos calles. La composición se confía a su potente volumetría proveniente de la planificación urbanística  y a la expresión y tratamiento de los huecos de fachada (terrazas), que ordenados de manera seriada, forman un fondo sobre el que destacan las pequeñas excepciones que hacen de contrapunto. Su esquema compositivo repetitivo en donde cada vivienda se manifiesta de forma unitaria genera un esquema agrupativo que garantiza una escala de huecos acorde con la del conjunto y con la ciudad.  

Hemos prestado especial atención al espacio comunitario resultante de la ordenación. El patio será el espacio de relación, una zona ajardinada que mejorará las condiciones de microclima del edificio. Este se trata consecuentemente a las posibilidades de mantenimiento y las condiciones climatológicas. Se propone en sus espacios ajardinados la plantación de especies de rápido crecimiento y escasa demanda de agua. Se resuelve de manera sencilla, se ha proyectado un área central con áreas ajardinadas que permiten la plantación de árboles de gran porte donde. El recinto de piscina, el área de juegos infantiles, y resto de áreas estanciales la completan. Los muretes que confinan las áreas ajardinadas, definen las áreas de reposo y esparcimiento modificando sus anchos allí donde se considera necesario para reforzar el carácter estancial de los mismos.