196 VPO ALCORCÓN

  • UBICACIÓN Alcorcón. Madrid
  • FECHA 1995
  • PROMOTOR EMGIASA

Primera promoción de la empresa municipal de la vivienda de Alcorcón, creada con la voluntad de intervención en el mercado para solucionarla necesidad de viviendas destinadas a las capas de ciudadanos más jóvenes y desprotegidas.Necesariamente, hubo que hacer una propuesta contrastada, sin sorpresa posible,es decir, unidad de tipología y de bloque acompañada de austeridad de elementos constructivos primarios y escasa variación en los secundarios, sin perder de vista el dialogo programa-presupuesto.

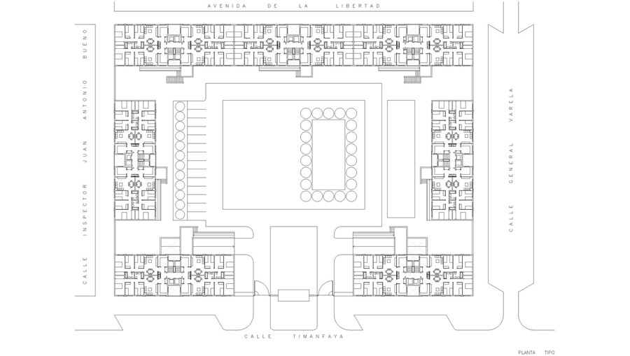
La ordenación resulto de la agrupación de siete bloques, de idénticos volúmenes, exentos y autónomos, de aspecto calculado, con referencias racionalistas y minimalistas y que se ciñó a un tratamiento del lenguaje ortogonal con gestos arquitectónicos controlados.

El patio-manzana es el elemento articulador en el que se sitúan los accesos a portales y garajes, la función lúdica y de relación de todos los usuarios. El tratamiento superficial en el que predominan las zonas pavimentadas, el hormigón impreso, el adoquín hueco tapizado de césped, el asfalto y el albero, garantizaron su longevidad y un bajo coste de mantenimiento.

La viviendas se agruparon a razón de cuatro unidades por planta y núcleo de escaleras, sacrificando la doble orientación en aras de rentabilizarlos sistemas de comunicación vertical. La contigüidad de cuartos húmedos permitió la reducción del coste de instalaciones.

La compartimentación interior se hizo con tabiques de yeso-cartón instalados sobre solado continuo de baldosa de terrazo, para permitirla remodelación del espacio como consecuencia de la previsible modificación del programa familiar. La utilización de carpinterías correderas en el interior y fachadas palió la reducción de la ya de por sí escasa superficie habitable.

El tratamiento de las fachadas a base de mortero monocapa sobre una superficie plana como soporte de una distribución repetitiva de huecos ofrece una textura tersa y monocroma rayando el calvinismo estilístico.