217 VPP TRES CANTOS

  • UBICACIÓN Tres Cantos. Madrid
  • FECHA 2011
  • PROMOTOR FCC

Planeamiento urbanístico

El Plan General de Tres Cantos y el Plan Parcial que desarrolla el área determinan la edificabilidad, las proporciones, las zonas deposición de la edificación (aquí llamadas “áreas de movimiento”) e incluso el tipo edificatorio: Alquiler Joven con Opción a Compra (AJOC).

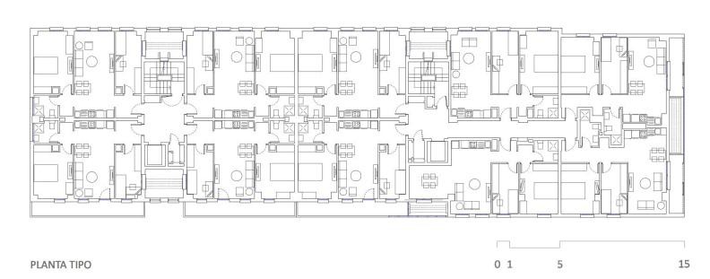
El planeamiento urbanístico determina que las viviendas serán las llamadas “Viviendas de Alquiler Joven con Opción a Compra”(AJOC) con un tamaño y una “composición interna” muy fuertemente determinada por las leyes madrileñas.

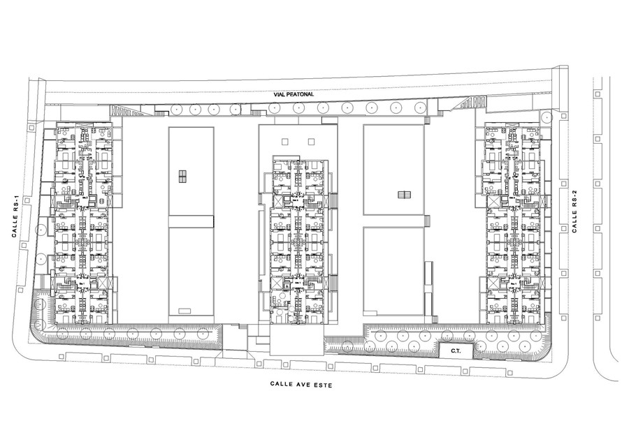
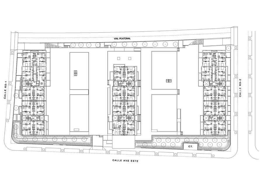
Disposición general

Se proyectan tres bloques rectangulares paralelos en el interior de las “áreas de movimiento” predeterminadas por el Plan Parcial. Inexplicablemente las normas impiden orientar las viviendas en dirección E y O, lo que obliga a que el 50% de las viviendas estén orientadas a N.

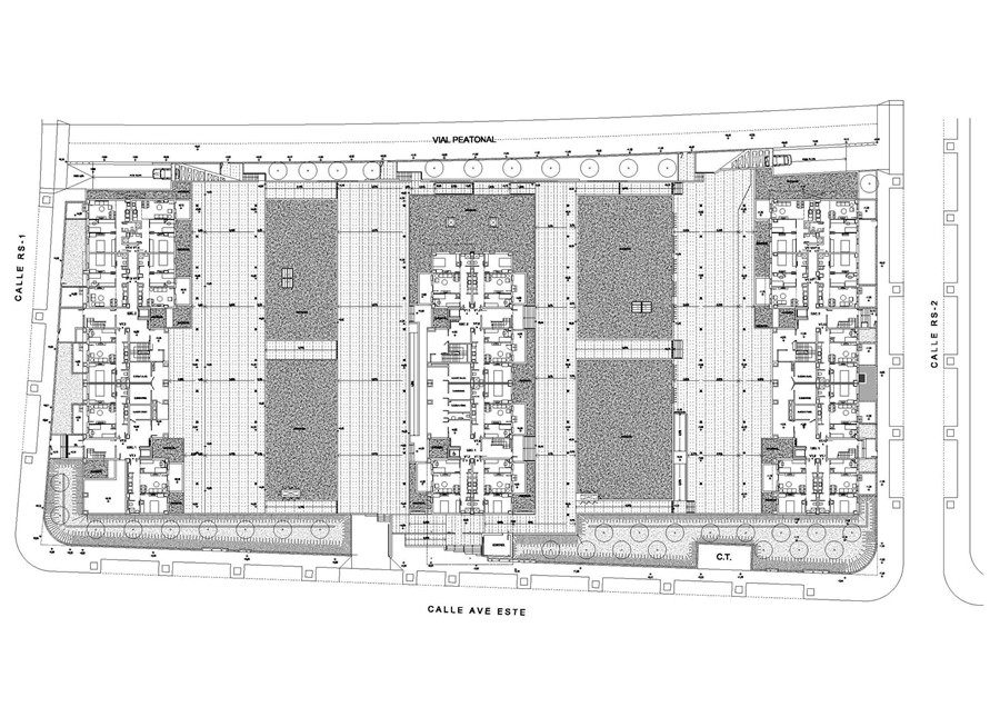
Construcción

Edificación directa y extremadamente eficaz que hace de la sencillez volumétrica, de la repetición de huecos muy simples y de la dicotomía cromática (negro/blanco norte/sur) sus argumentos formales.