29 VPP PALMA DEL RÍO

  • UBICACIÓN Palma del Río. Córdoba
  • FECHA 2002
  • EN COLABORACIÓN CON Francisco Domouso

CONCURSO DE ARQUITECTURA PARA JÓVENES ARQUITECTOS EN ANDALUCÍA

LEMA : SIN OTRO PARTICULAR, TE SALUDA ATENTAMENTE...

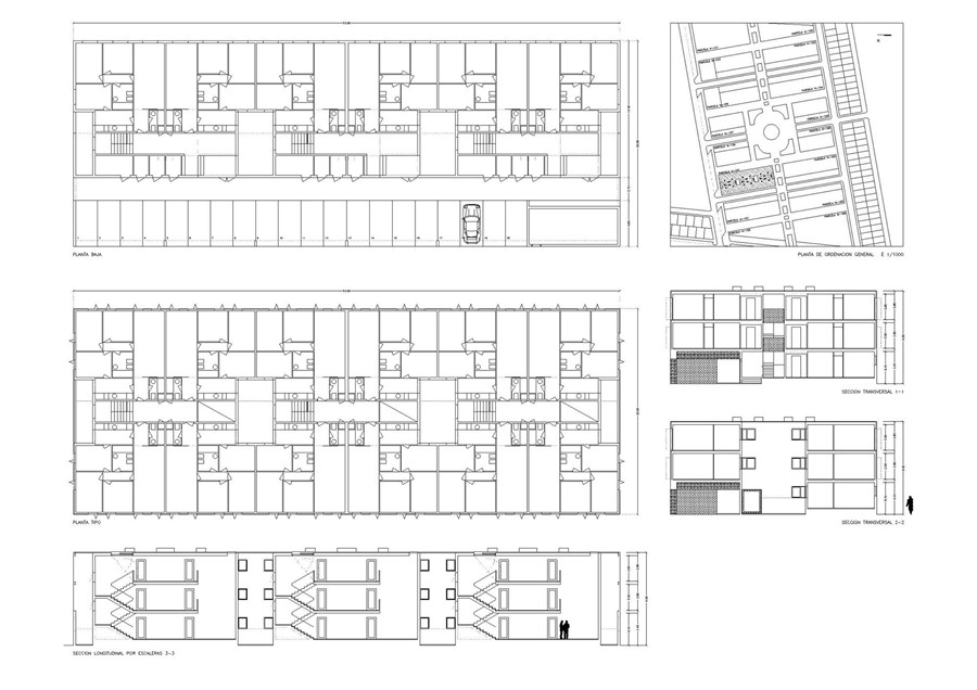
La actuación apuesta por un volumen de contornos rotundos capaz de afirmar su autonomía frente a los desatinos heterogéneos residenciales sin ningún interés arquitectónico de los alrededores.

Dar cobijo a familias convencionales sigue siendo el cometido de la mayoría de los proyectos residenciales con protección pública.

Frente a las restricciones tipológicas que impone la normativa se elige la abstracción como estrategia compositiva en los alzados.

La composición de los alzados refuerza las líneas contundentes del prisma.

Una piel exterior formada por paneles de cemento-madera cubre toda la superficie de las fachadas desdibujando los pormenores del programa domestico.

un mecanismo metálico permite plegar allí donde resulta necesario los paneles por pares perpendiculares a la fachada, de manera que puede quedar totalmente cerrada o permitir el paso de la luz y las vistas.

Estas"contraventanas" producen un juego cambiante de huecos y vacíos en la fachada que contrasta frente al estático zócalo de hormigón sin tratar que cierra la planta baja.

Materialmente, el proyecto se plantea con una doble piel que trasdosa la cara de la obra gruesa ejecutada en medio pie de fábrica de ladrillo, fachada ventilada para los duros días estivales.

Los patios se revisten con plaqueta de azulejo haciéndose más luminosos.

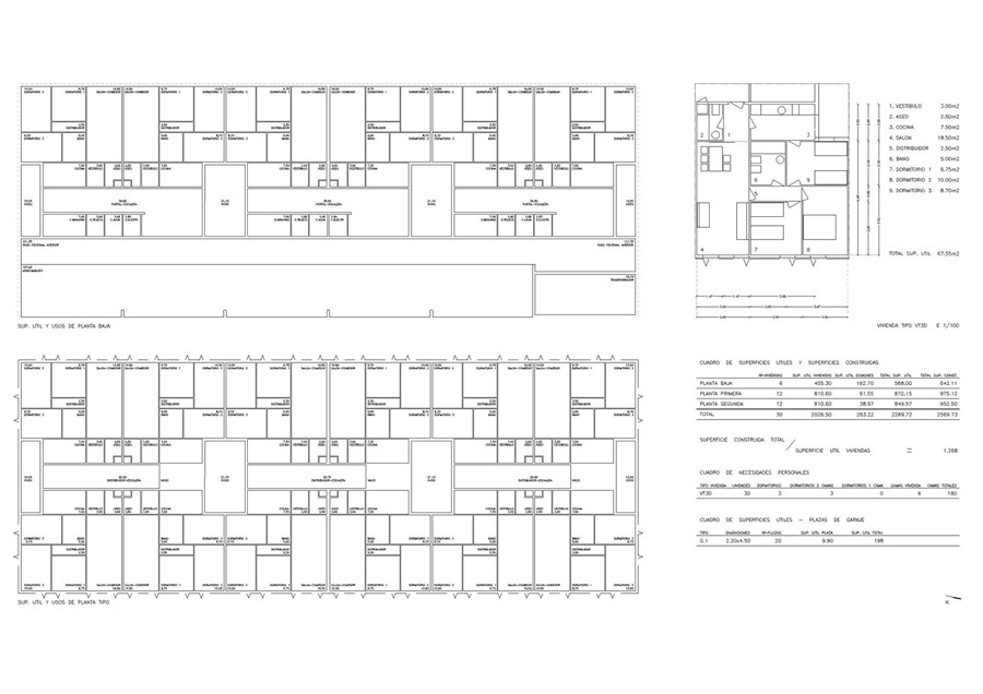
nota: el proyecto propone la construcción de 30 viviendas. No obstante admite la sustitución de una vivienda en planta baja por un local comercial respondiéndose así a las necesidades programáticas planteadas.