3 VIVIENDAS EN VILLAFRANCA

  • UBICACIÓN Villafranca de la Sierra. Ávila
  • FECHA 2003

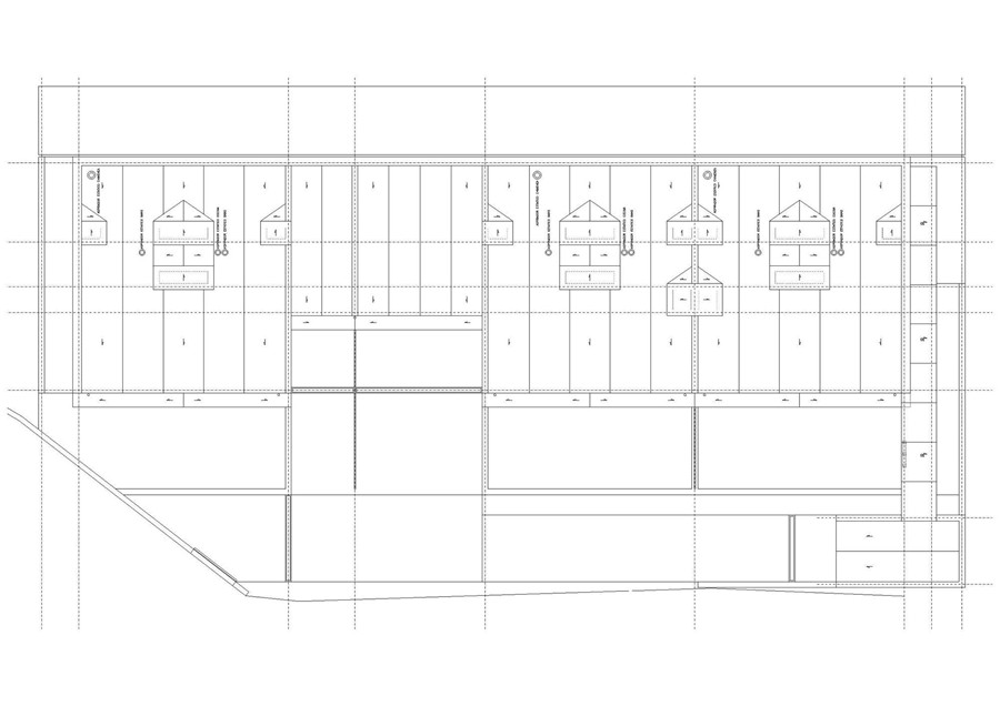
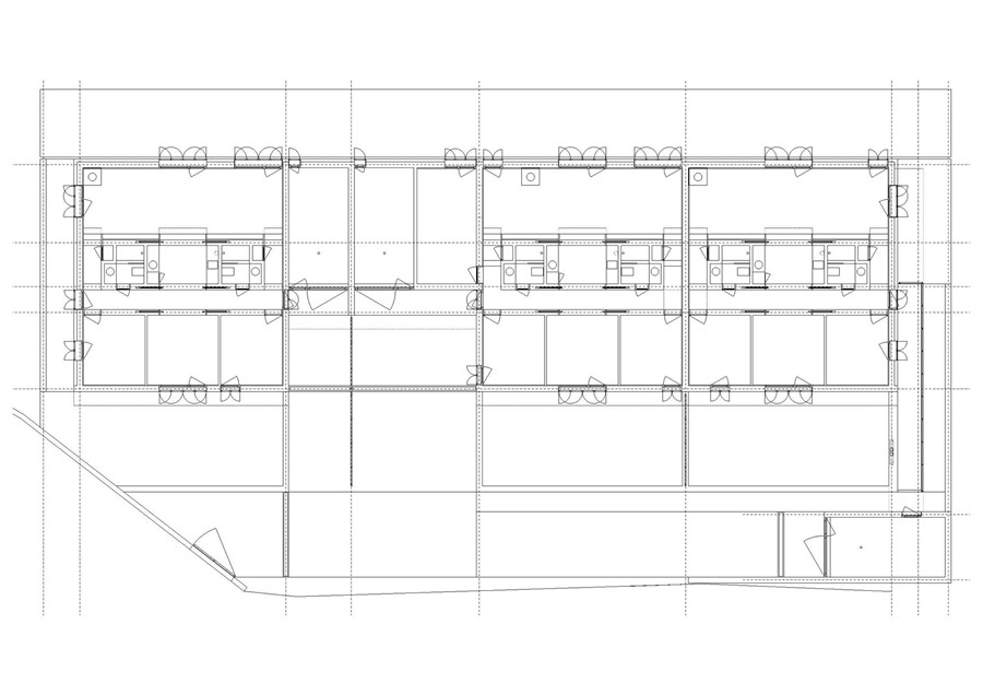
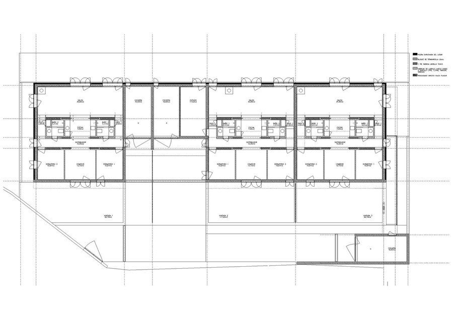
Se trata de un edificio destinado a 3 viviendas unifamiliares de una planta de altura, resuelto en tres crujías paralelas.

En la crujía sur se sitúan las estancias destinadas a dormitorios. En la crujía central se encuentran los espacios de servicio tales como cocinas y cuartos de baño; y en la crujía norte y abiertas a las vistas, las salas de estar.

La situación de las cocheras, entre las viviendas, refuerza la privacidad entre las mismas.

El edificio pretende integrarse tipológicamente en su entorno utilizando un lenguaje propio de la arquitectura del lugar. Fábricas de carga revestidas de piedra, cubierta a un agua, contraventanas exteriores y huecos con carpintería de madera organizados con aparente aleatoriedad, a buen seguro ayudarán a este fin.

Las viviendas se desarrollan en una planta y se banquea a una cota inferior la  crujía norte para adaptarse a la pendiente natural del terreno. Las viviendas se adosan constituyendo un volumen compacto bajo una misma cubierta, esta compacidad proporciona una mayor escala al conjunto y trata de resolver el “problema de límite urbano” que la nueva construcción genera. Las viviendas constan de las siguientes dependencias:

 

Crujía sur:

Dos dormitorios y un comedor por vivienda.

 

Crujía central:

Distribuidor general,dos baños y cocina por vivienda.

 

Crujía norte:

Una sala de estar por vivienda, las cocheras de las viviendas denominadas nº1 y nº 2, y una sala estudio en la vivienda nº2.

 

La cochera de la vivienda nº3 es exenta.