43 VL ARROYOMOLINOS

  • UBICACIÓN Arroyomolinos. Madrid
  • FECHA 2016-
  • PROMOTOR LARCOVI S.A.L.

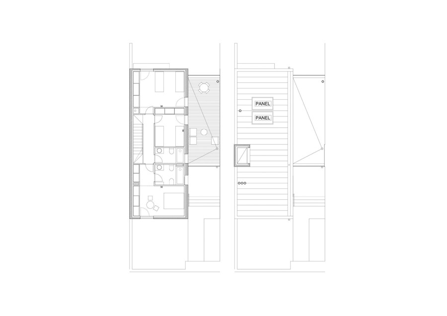
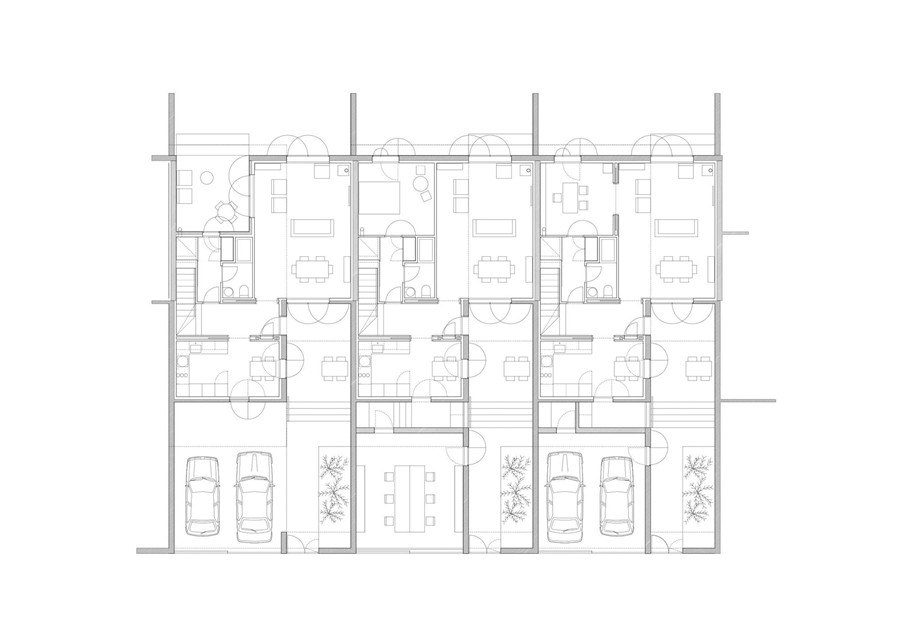
Proyecto de 43 viviendas unifamiliares adosadas situadas en una parcela con fuerte pendiente en sus dos direcciones.

La volumetría propuesta trata de minimizar el problema compositivo que siempre supone la necesidad de escalonamiento entre viviendas colindantes.