72 VL ALCOBENDAS

  • UBICACIÓN MADRID
  • FECHA 2017
  • PROMOTOR NEINOR HOMES

El cumplimiento estricto de las necesidades programáticas solicitadas en las bases del concurso, hace necesaria la aplicación inclemente de la norma impuesta.

Por todo ello la vivienda tipo y sus futuros ocupantes se convierten en nuestro único objetivo. Esto quiere decir que, en esta ocasión, abordamos la propuesta desde el tipo.

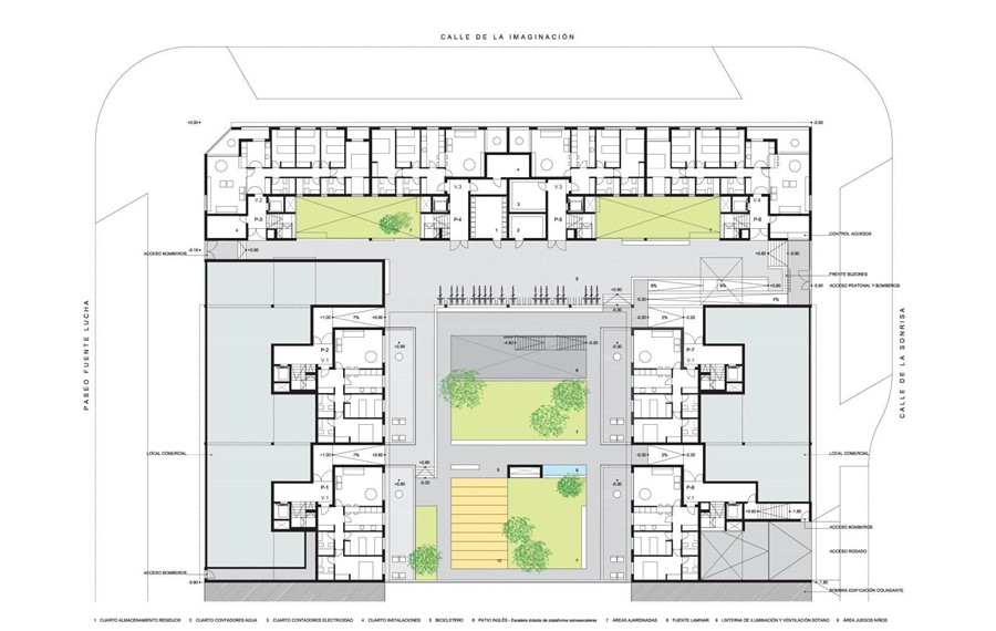
La mayor dificultad la encontramos en la excesiva profundidad edificable para la tipología de viviendas pasantes, tipología a la que entendemos no se debe ya renunciar.

La disposición y número de núcleos verticales proyectados hace que los salones y los dormitorios principales del tipo proyectado, y que más se repite en nuestra propuesta, gocen de iluminación y ventilación directa a doble fachada.

Nos vemos obligados a cambiar la norma de agrupamiento de las unidades básicas en el eje de simetría de nuestra propuesta, en posición central se agrupan los salones para así conseguir una superficie continua suficiente para la ubicación encubierta de la piscina requerida con una lámina de agua coherente al número de viviendas proyectado.

El diseño de los espacios libres interiores, dada la dureza y hostilidad del espacio público exterior, es de vital importancia. Se proyecta utilizando una geometría precisa, configuradora de recorridos y espacios de reposo bien medidos, amables. Este espacio interior debe ser contrarresto de la dureza y hostilidad del espacio público exterior.

Acabar estas ideas fundamentales de nuestra propuesta mostrando que el carácter repetitivo, modulado de la solución adoptada podría permitir el uso intensivo de la construcción en seco, mediante el uso de elementos prefabricados de hormigón armado. Un adecuado diseño y uso de estos permite optimizar al máximo los procesos de producción, transporte y ejecución de obra, lo que redunda en un menor consumo energético.