80 VIVIENDAS COLLADO VILLALBA

  • UBICACIÓN COLLADO VILLALBA
  • FECHA 2022
  • PROMOTOR HABITAT INMOBILIARIA
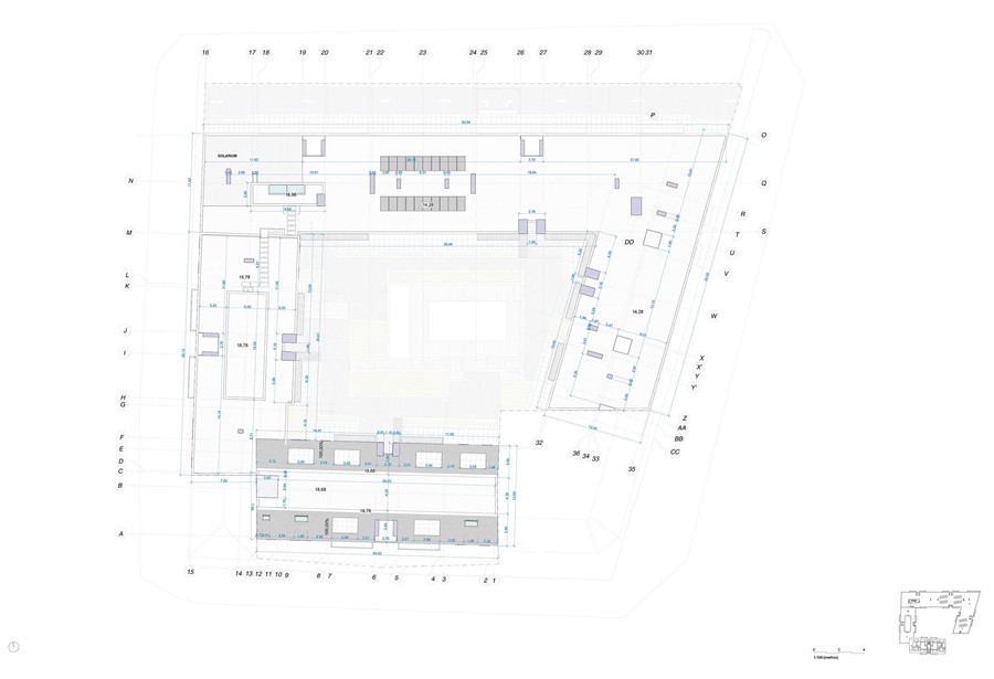
Se trata de una construcción en manzana cerrada (MC), siguiendo las alineaciones interiores y exteriores, de 12 m. de profundidad determinadas en el PGOU. La manzana no puede cerrarse debido a un edificio de construcción reciente en la esquina de C/ Ignacio González Serrano y C/ Morales Antuñano, y a otra edificación antigua, de una sola planta, en la esquina de C/ Ignacio Serrano con C/ Carlos Ruiz. El edificio consta de cuatro plantas sobre rasante excepto el cuerpo situado en la medianera con la edificación de la esquina citada en primer lugar, en el que se propone una edificación sobre la última planta bajo cubierta a dos aguas.
Bajo rasante, que ocupa toda la superficie de la parcela, se proponen dos plantas sótano para albergar la dotación de plazas de garaje y trasteros y una sala para Uso Comunitario.
El diseño obedece a las premisas propuestas por el Promotor:
-Número de viviendas
-Aprovechamiento de la edificabilidad
-Programa de distribución y número de viviendas de dos y tres dormitorios
-Eficiente relación entre superficies útiles y superficies construidas.
-Dos cuartos de baño por vivienda
-Dotación de terrazas
De la aplicación estricta de esos condicionantes se han propuesto tipologías de vivienda reconocibles en el mercado inmobiliario.
Las viviendas se agrupan en número de cuatro por planta y núcleo, excepto en el portal 1 y en las situadas en planta baja.
El programa se repite prácticamente en todas las viviendas y consiste en vestíbulo, cocina, estancia/comedor, distribuidor, dos o tres dormitorios y dos cuartos de baño (uno de ellos incorporado al dormitorio principal). Terraza/tendedero abierta a la estancia/comedor. Las viviendas situadas en planta baja de la fachada interior y en la fachada a parcela colindante cuentan con un amplio espacio exterior vinculado a ellas.
En algunas viviendas se ha integrado la cocina a la estancia/comedor y en su mayoría, las características de distribución de las cocinas posibilita la posibilidad de integración simplemente con la eliminación del tabique divisorio.