95 VPP ARROYO DEL CULEBRO

  • UBICACIÓN Leganés. Madrid
  • FECHA 2004
  • PROMOTOR LARCOVI S.A.L.
  • FOTOGRAFÍA Ángel Baltanás

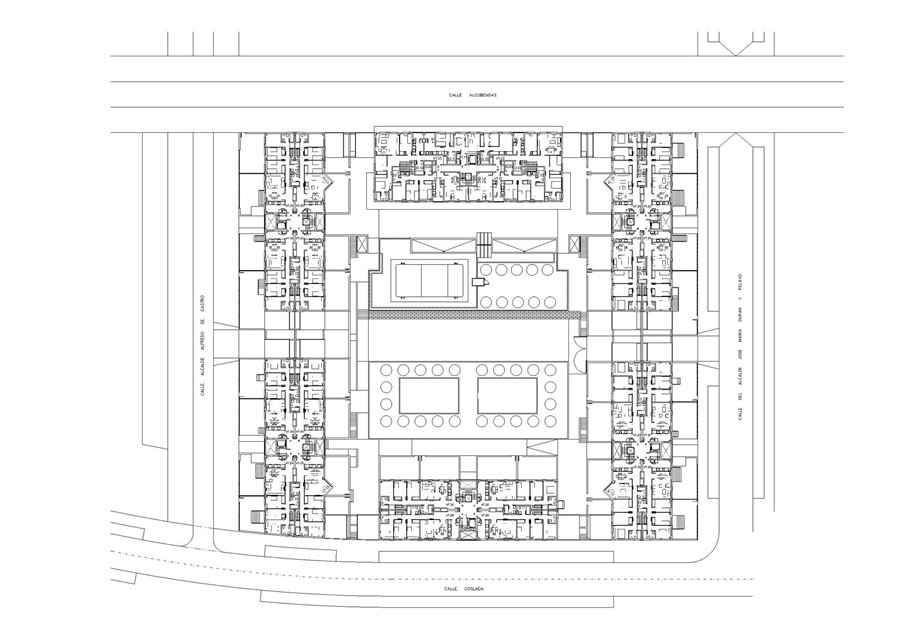
Como es por desgracia frecuentemente, el urbanista extendió la malla cuadriculada y la ordenación en manzana cerrada sin atender a la topografía. La parcela presenta una caída hacia el Suroeste con pendiente superior al 5%, incompatible con las leyes morfológicas  de dicha tipología.

El proyecto retuerce la normativa urbanística de aplicación,utilizando el bloque abierto para conformar una manzana cerrada. La continuidad entre los seis bloques emplazados en distintos niveles se consigue mediante la introducción de terrazas que les encadenan a nivel de planta primera y que reciben un tratamiento formal diferente del bloque sin enmascarar su misión.

En los bloques de planta rectangular, se agrupan cuatro viviendas por planta y núcleo de comunicación, distribución recurrente, que revierte en beneficio de la economía y en detrimento del confort inherente a la ventilación cruzada.

Ocurre lo contrario en las viviendas situadas en planta baja, que son pasantes y a las que se adjudican espacios exteriores, en su mayoría sobre terreno vegetal. El proyecto procura al 50% de la totalidad de viviendas espacios exteriores privativos, poco frecuentes en vivienda colectiva, susceptibles de utilización durante la mayor parte del año en la climatología madrileña. La amplitud y profusión de terrazas conlleva el riesgo de que los propietarios las personalicen (chabolicen) con la inestimable colaboración de Leroy-Merlin, pero entendemos que el arquitecto debe proyectar haciendo abstracción de ello y confiar en la autodisciplina de la comunidad de propietarios.

En la cubierta de cada uno de los bloques se sitúan cuatro “solariums”comunicados por sendas escaleras con las viviendas de la planta cuarta, y los trasteros comunitarios, revestidos de chapa metálica prelacada que los distingue de la piel de mortero monocapa verde con que se cierran las fachadas de viviendas.

En la urbanización interior se han establecido dos plataformas horizontales, para piscina y juegos infantiles. La contención delas tierras entre ellas se ha hecho empleando “gaviones”. Ese sistema constructivo ofrece indiscutibles ventajas frente al muro de hormigón, que van desde el valor ecológico, ya que en su ejecución la energía utilizadas es la mínima, hasta el económico, sin descartar el estético por su integración en la jardinería.