97 VPPB MÓSTOLES

  • FECHA 2014
  • PROMOTOR LARCOVI S.A.L.
  • EN COLABORACIÓN CON FRANCISCO DOMOUSO

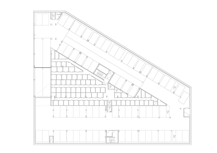
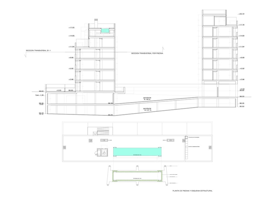
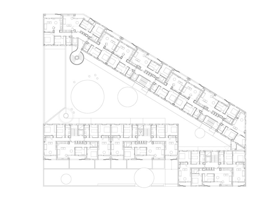
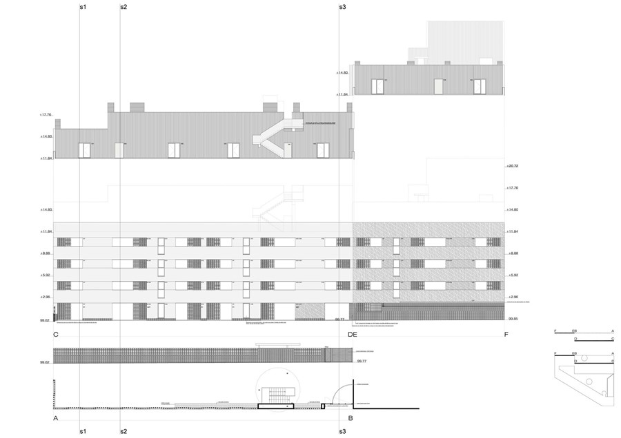
Se trata de un edificio destinado a vivienda colectiva de protección oficial en régimen de alquiler, de 4 y 6 plantas de altura, correspondientes a planta baja más 3 más ático retranqueado, y planta baja más 5 más ático retranqueado. Se proyectan 2 plantas bajo rasante destinadas a trasteros y garaje.

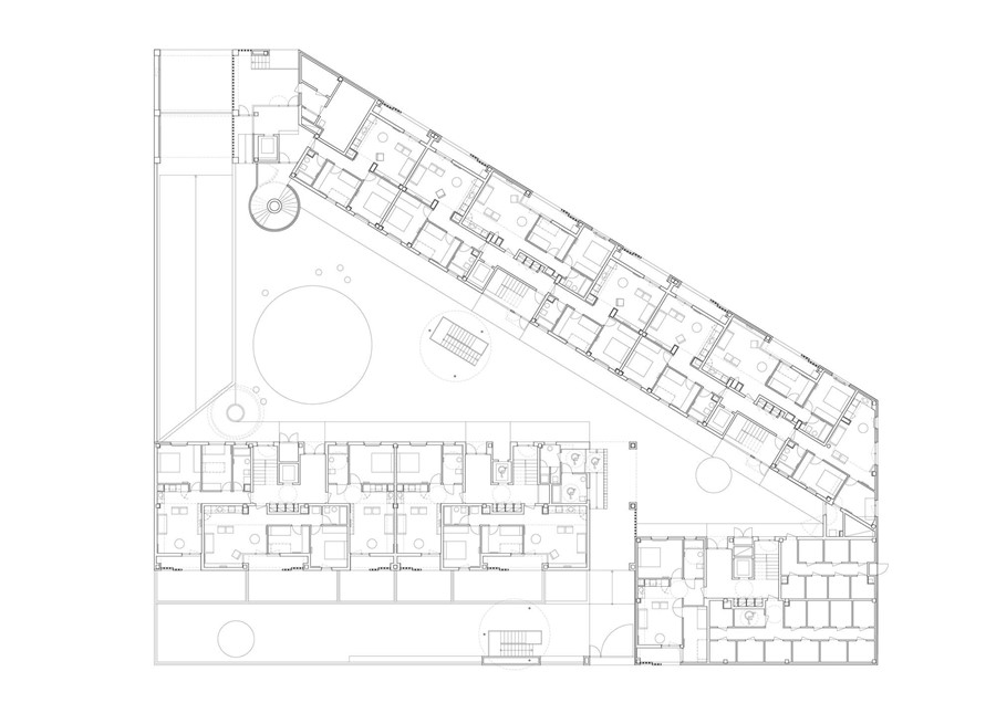
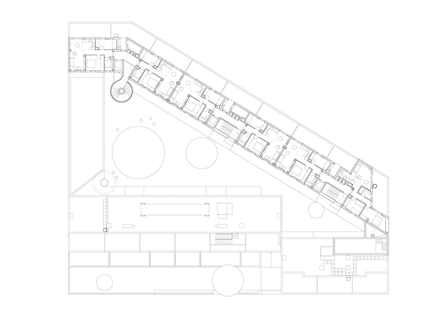
La fachada norte del edificio, siguiendo el planeamiento vigente, tiene 4 alturas, y corresponde a los portales A, F y E. La fachada sur del edificio tiene 6 alturas, y corresponde a los portales B, C y D.

El edificio se resuelve con planta en forma de “U”, ajustada a la geometría de la parcela, con dos crujías paralelas siguiendo las alineaciones preceptivas de edificación contenidas en el planeamiento. Las crujías tienen un ancho respectivo de 9,60 m y 10,85 m.

El edificio se organiza con 5 portales. El acceso a los portales se realiza desde el interior de la parcela. El acceso principal a la parcela se realiza desde el norte, que es una zona peatonal prevista en el planeamiento. Existe otro acceso, ligado al portal D, desde la fachada sur del edificio, coincidente con el acceso de vehículos al aparcamiento. 

Todos los portales dan acceso a 3 viviendas por planta, excepto en la planta de áticos, que da acceso a 2 viviendas por núcleo.

El total de viviendas proyectadas es de 99, 149 garajes y 100 trasteros.