ACONDICIONAMIENTO VAGÓN DE TREN PARA VIVIENDA

  • UBICACIÓN Madrid
  • FECHA 2016

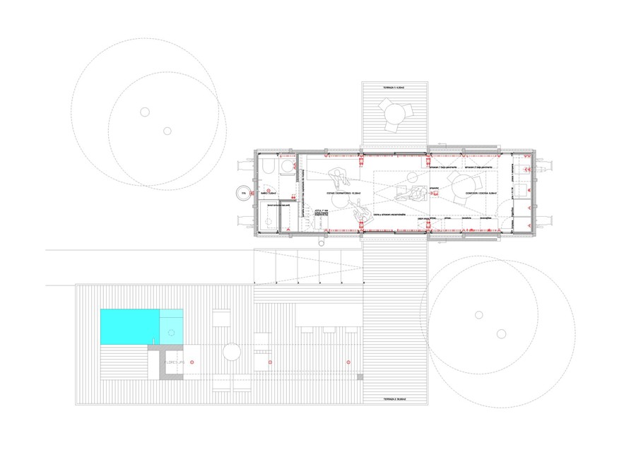
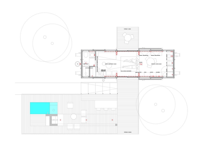
El proyecto consiste en la adaptación de un vagón de carga ferroviario para refugio o micro-vivienda de montaña. También, en la rehabilitación de su estructura y cerramientos.

La estrategia adoptada libera la planta.

Optimizar el poco espacio disponible y dotarlo de la mayor flexibilidad de usos es nuestro objetivo.

Cocina y baño ocupan sendos extremos del vagón liberando el resto de la planta para los usos de estar y comedor. La zona destinada a cocina y comedor se eleva ligeramente permitiendo escamotear bajo su suelo una cama y pequeños almacenes, elementos que complementan el resto de funciones domesticas necesarias, y que una vez activados cambian la funcionalidad del espacio principal.

La actuación interior se complementa con un gran “deck” exterior dotado de zona de aguas y fuego que contribuye a anclar el vagón al lugar.