AMPLIACIÓN MUSEO SOROLLA

  • UBICACIÓN MADRID
  • FECHA 2016

El objeto de la actuación consiste en dotar de instalaciones complementarias a la actual sede del Museo Sorolla haciéndolo más funcional y eficaz, consiguiendo integrar todas sus dependencias en un todo reconocible como organismo único.

Se han eliminado todas las barreras físicas haciendo accesible la totalidad de las instalaciones interiores del Museo tanto de uso público como privado. Queda fuera de esta corrección de barreras arquitectónicas el jardín ya que su eliminación conllevaría una fuerte afectación patrimonial.

Ampliación

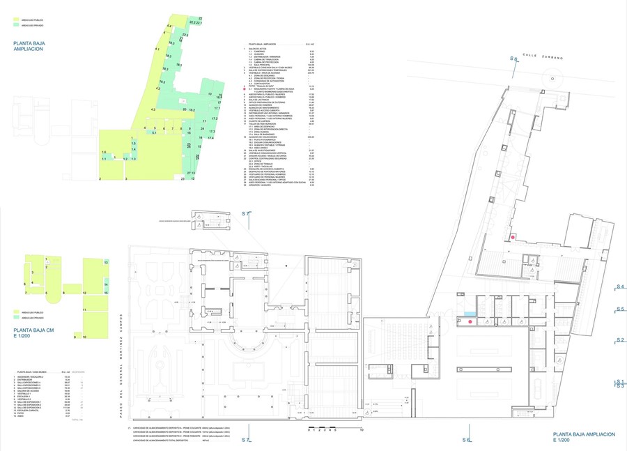
El problema compositivo es evidente; la concordancia entre un perímetro de fuerte irregularidad y un sistema cartesiano interior que permita definir los recorridos y espacios interiores de manera clara y precisa.

Buscamos un contenedor de desnuda sencillez obtenida desde la más absoluta geometrización interior que quedará reforzada con la desigual luz superior, que, unas veces de forma más intensa y otras de modo más sutil y apagado, pondrá en valor las limpias aristas de su definida geometría. Los lucernarios aparecerán allí donde sean necesarios no sólo por su función, sino como refuerzo de la geometría interior. Un mundo blanco, simple en la planimetría, y más complejo y plástico en las piezas que construyen las coronaciones luminosas de los espacios. Un mundo blanco que espera el del arte que decida elegirlo como soporte.

Los espacios están graduados de forma que puedan ofrecer la versatilidad necesaria no sólo para albergar distintos usos, sino para ser utilizados parcialmente. La claridad de la organización interior permite la articulación de los diversos elementos del programa en volúmenes diferentes, al tiempo que permite una lectura global de todo el conjunto, cuestión esta necesaria en todo centro de uso público.

En contraste con el hermético o mejor dicho ausencia de exterior, el luminoso interior está acabado en mármol blanco y en estuco. La paleta de materiales empleados se pretende muy corta. Tres materiales: estuco,mármol y madera. Dos colores: blanco y el propio de la madera finalmente elegida. La idea básica: No distraer la atención, la consecución de espacios neutros. Será la luz diurna o la nocturna, y los visitantes, los que generen el necesario calor y vida en los espacios proyectados.

Las salas expositivas y el taller de restauración disfrutan de iluminación cenital natural a través de lucernarios situados en el centro de las mismas. Unos difusores suspendidos en los que se incorpora un sistema de iluminación artificial indirecta protegen las obras de arte de la luz solar. Se ha previsto además en el perímetro inferior de estos difusores la instalación de raíles electrificados que aportan a las salas una mayor flexibilidad de uso y compartimentación a las salas. Un conjunto de lucernarios provistos de mecanismos de control solar se reparten a lo largo del resto delas salas proyectadas y zonas distributivas del centro inundándolo de luces y sombras, y marcando y ordenando con su presencia los distintos usos y recorridos de la arquitectura proyectada. El situar el almacén de colecciones propiamente dicho y almacén de enseres bajo la estricta huella del edificio inmediatamente superior, permite liberar toda la zona de patio para el resto de usos del programa. Así todos los locales de uso público o privado cuentan con iluminación natural.

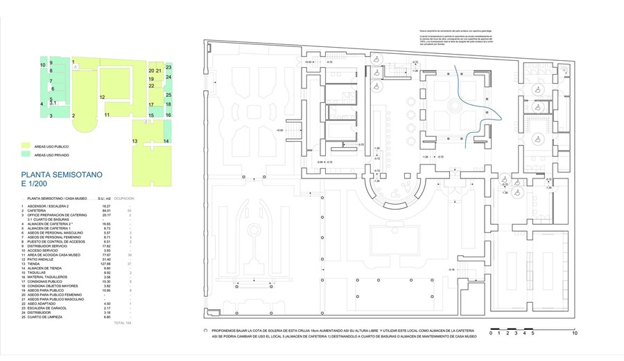
La creación de un patio al final de la “calle interior” de acceso a la ampliación revestido con grandes placas de mármol blanco y que se pretende abierto siempre que el clima lo permita, sirve de descompresión justo en el punto de más tensión arquitectónica de nuestra propuesta, y nos conecta mediante guiño espacio temporal con la Casa Museo (patio andaluz) y con el cuadro: Desnudo “Después del baño”, uno de nuestros favoritos en Sorolla.

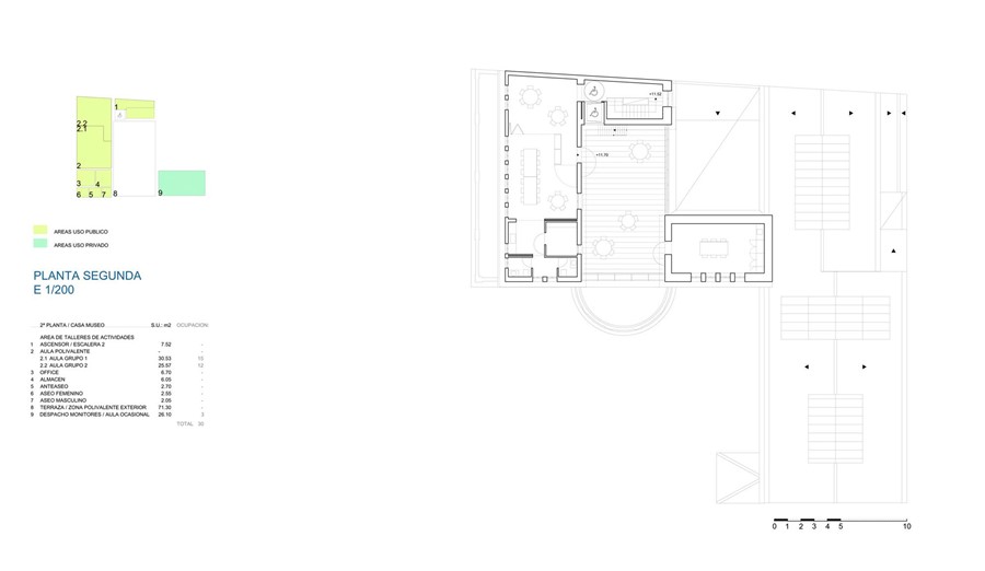
El salón de actos se proyecta con sillería desmontable y apilable. De este modo no se hipoteca su función a un solo uso, pudiendo ser utilizado como sala de exposiciones adicional, aula para talleres de actividades u otros fines.

Casa Museo

En la Casa Museo el problema es la limitación que supone su condición de edificio histórico en cuanto a la prestación de servicios museísticos en toda su extensión y garantía. Por otro lado, se hace necesaria la reestructuración integral, renovación y/o rehabilitación de algunos de sus espacios por haberse quedado obsoletos o por la nueva ubicación de usos que la nueva ampliación supone. La necesaria dotación y/o renovación de instalaciones que permitan un mejor funcionamiento del edificio como Casa Museo es otro delos objetivos primordiales de la actuación prevista.

Por otra parte, lograr hacer accesible, sin barreras arquitectónicas, la actual Casa Museo es una vieja demanda formulada por los visitantes y una obligación programática del concurso. El nuevo núcleo de comunicaciones verticales proyectado resuelve con eficacia este aspecto mediante la instalación de un elevador panorámico hidraúlico, ejecutado con puertas y cabina de vidrio laminado trasparente.

En cuanto al modo de actuar en el ámbito de la Casa Museo, este será siempre respetuoso con la condición histórica del edificio recuperando aquellas estancias torpemente manipuladas a su estado original(área de acceso – patio andaluz). En las zonas de obligada manipulación y sin referencias a su estado original se plantean soluciones más libres pero manteniendo un tono neutro en su diseño y configuración matérica.

A continuación señalamos las fortalezas de la propuesta que presentamos:

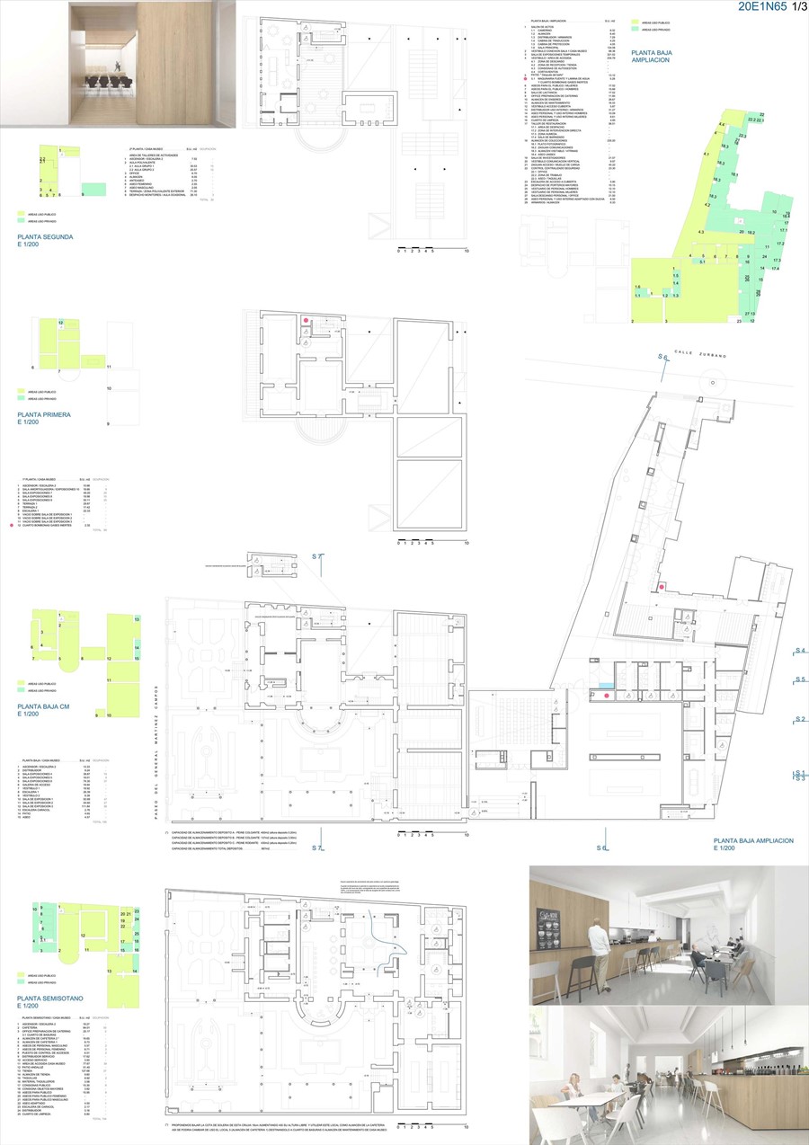
Planta Semisótano. La totalidad de la planta se hace accesible para personas con movilidad reducida. Se ha conseguido una circulación perimetral del patio andaluz. Mediante la sustitución de las carpinterías de cerramiento de ese patio por otras de tipo galandage (escamoteables), y que permiten  una apertura del 100%, se consigue la incorporación total del área de acogida al mismo tal y como fue concebido por Sorolla.

La apertura de un pequeño hueco que comunique directamente taquillas y área de acogida podría suponer una mejor orientación y organización de los flujos de visitantes. No se ha grafiado así por el carácter histórico del muro y del espacio a intervenir, pero se propone valorar su apertura por parte de los técnicos y/u organismos competentes.

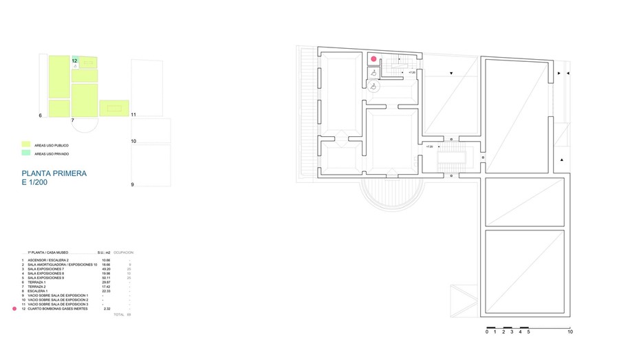
Planta Baja. La totalidad de la planta se hace accesible para personas con movilidad reducida.

Planta Primera. La totalidad de la planta se hace accesible para personas con movilidad reducida. Se altera su distribución eliminándose el efecto de fondo de saco de la sala VII. La inclusión de una sala amortiguadora junto al nuevo núcleo vertical de comunicaciones cualifica y clarifica las circulaciones y uso de la planta, al mismo tiempo que mejora la torpe volumetría de la sala IV.

En cuanto al “estilo” utilizado en las partes renovadas de la planta, se mantiene el lenguaje de las mismas.

Planta Segunda. La totalidad de la planta se hace accesible para personas con movilidad reducida. Se renueva enteramente planteándose una distribución que permita la máxima flexibilidad en el uso de la misma. El despacho de monitores se propone en el torreón, se le dota de las instalaciones necesarias para poder ser utilizado como aula ocasional. En la terraza exterior se prevé la instalación de unas barandas de vidrio laminar, que junto con la ejecución de un pavimento flotante de losas de piedra natural, permitan su uso como aula exterior.