Proyectos
CULTURAL / EDUCACIONAL
TERCIARIO / SALUD
INFRAESTRUCTURA
REHABILITACIÓN / INTERIORISMO
RESIDENCIAL UNIFAMILIAR
RESIDENCIAL PLURIFAMILIAR
Estudio
Socios
Equipo
Perfil
Premios
Colaboradores
Noticias
Publicaciones
Contacto
ES
EN
facebook
linkedin
pinterest
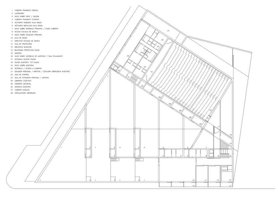
AUDITORIO Y ESCUELA DE MÚSICA
Share
facebook
twitter
pinterest
UBICACIÓN
SAN MARTÍN DE LA VEGA. MADRID
FECHA
2001
EN COLABORACIÓN CON
FRANCISCO DOMOUSO
***
atrás
alante