AUDITORIO Y PALACIO DE CONGRESOS MUNICIPAL

  • UBICACIÓN San Pedro del Pinatar. Murcia
  • FECHA 2002
  • EN COLABORACIÓN CON Francisco Domouso

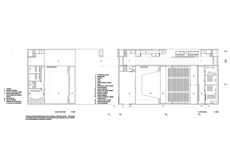
Situado en el límite oriental de San Pedro del Pinatar en parcela exenta que habrá de compartir con un futuro centro comercial, en un entorno todavía por hacer, el centro de cultura y de congresos se alzara como pieza clave para la articulación de su entorno urbano.

El tamaño del edificio que se nos pide, así como su"medido" presupuesto, nos hace apostar por una pieza de rotunda presencia geométrica que acomode de una manera sencilla el programa de usos que se nos pide.

La planta rectangular nos permite ubicar con naturalidad, sin gestos efectistas el programa. El edificio se adapta a la alineación mayor,fachada norte y calle tranquila, y se separa de las dos arterias principales de tráfico rodado y por lo tanto más ruidosas (carretera del puerto y Avda. Alcalde José María Tárraga) liberando dos espacios públicos. Uno se relaciona con el acceso principal al centro de congresos desde su posición natural respecto a la ciudad. El otro, al sur, futura plaza de espectáculos al aire libre se puede cerrar con una cinta o vallado desmontable que queremos imaginar como una gran escultura de Serra, acomoda en su interior el aparcamiento al aire libre. El aparcamiento elemento paisajístico portador de los signos de la urbe y la artificialidad colabora en la inserción del centro de congresos,emergiendo este de aquel.