BBVA MANAGEMENT SCHOOL

  • UBICACIÓN EL ESCORIAL. MADRID
  • FECHA 2007
  • EN COLABORACIÓN CON FRANCISCO DOMOUSO
  • OTROS COLABORADORES JUAN TRUJILLO

El lugar

Lugar con condiciones naturales privilegiadas.

Las edificaciones propuestas se "aprietan" en su parte baja ya edificada liberando el resto de la parcela, y protegiéndola definitivamente.

Pensamos que esta es la mejor manera de integrar unos edificios de esta dimensión en una parcela de gran sensibilidad y minimizar el impacto en el paisaje, apretarlos en su parte más baja.

Se crea un camino de ronda perimetral apoyado en un muro de cerramiento. Este se tensiona con la introducción de varias folies sin uso propio determinado. Son lugares para la reunión y el esparcimiento, también pueden actuar como pequeñas unidades habitacionales. En definitiva son espacios de oportunidad y de acción. Son lugares donde actuar de forma más libre. Este muro perimetral acota y pone en valor la parcela que pasa a ser"ciudadela".

 

La plaza balcón. El Zócalo

La propuesta genera dos piezas que configuran una plaza mirador abierta. Una plaza donde mirar y desde donde mirar.

La plaza actuará como una caja de resonancia haciéndose eco de la vida empresarial y cultural que se desarrollará en los edificios.Queremos huir de soluciones ensimismadas potenciando el valor positivo del emplazamiento.

Para liberar esta plaza de actividades de carga y descargase define la calle "X" como trajinero de servicios situándose desde esta calle los accesos al aparcamiento público y al de uso privativo del edificio residencial, que sirve también de entrada de servicio al mismo.

La solución que planteamos pretende dar la posibilidad de una respuesta arquitectónica conjunta a las dos edificaciones. Una de nueva creación. La otra, manipulada, ya existente.

Se trata de acordar geometrías, vistas, circulaciones,niveles,usos. También texturas y calidad constructiva.

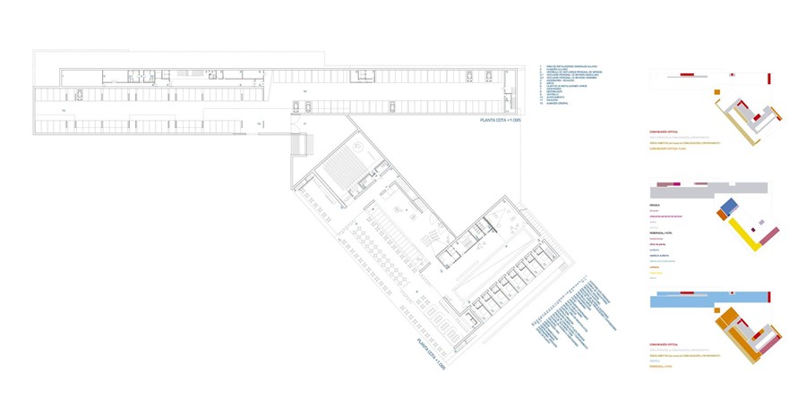
Todo esto se consigue con la eliminación de la calle interior que secciona en dos la posible parcela global y la ejecución de un zócalo desde el que nacen las "nuevas" edificaciones. El zócalo grapa las edificaciones aunando geometrías en planta, al tiempo que se adapta a los distintos niveles de las calles y se cubren plantas destinadas a aparcamientos e instalaciones de las edificaciones.

La situación de las edificaciones sobre el zócalo arropa el espacio público de la plataforma horizontal que convertida en balcón prolonga la vista hacia el magnífico horizonte.

Desde esta plaza balcón se accede al bosque a través del edificio lineal propuesto.

 

El Bosque

Para entrar debes entrar por debajo y en sombra. El edificio se convierte en referencia de acceso, en puerta a dicho bosque. Al tener puerta y muro perimetral queda acotado y valorado. Sin ser tratado, sin actuar sobre él,pasa a tener carácter propio y escala. Hasta diseño preestablecido como si de un jardín romántico se tratara.

Respecto a la actividad de dicho bosque, proponemos la apertura de un proceso que se podría llamar de apropiación cívica. Este proceso sería potenciado por el camino de ronda y las folies que actuarían  como verdaderos espacios, repetimos, de acción. 

 

El/los edificios

La propuesta adopta una forma sencilla, dibujada con precisión.

Nace de la necesidad de mantener un equilibrio entre una identidad poderosa y una necesaria discreción que preserve el carácter natural del paraje.

Las construcciones se disponen ancladas al terreno mediante muros de contención.

Su orden lineal y sencillo se despliega y va tomando forma por aquello que lo rodea: terreno, vistas, programa, orientación, la construcción...

El edificio existente se manipula buscando una imagen más contemporánea (también más higiénica y saludable, flexible,esponjada,panóptica...)

La creación de sendos patios entorno al edificio existente permite articular el programa exigido alrededor de ellos. Imágenes de los patios interiores de los claustros de los conventos nos vienen a la memoria,espacios que si bien cerrados y privados, nos elevan y liberan.

Las fachadas desaparecen en sus transparencias, entre luces y sombras, nos dirigen hacia fuera. Las celosías tamizan la relación entre lo público y lo privado, funden lo público y lo privado.

Alrededor de los "grandes volúmenes" o agrupaciones programáticas se teje un andamiaje de circulaciones. Se potencian estos espacios de relación como espacios de oportunidad y de acción.

Son lugares donde actuar de forma más libre. La movilidad se convierte en intercambio, espacios para circular y estar, para actuar y modificar.

Los edificios se comportan como gradas naturales al exterior. El tiempo permitirá que el "bosque" se trabe con los bordes edificatorios. El tiempo trabajara con el lugar.

En referencia a los materiales y a las técnicas de construcción,existe un intento de racionalización. Hay una búsqueda de sencillez patente en todo el proyecto.

Hormigón, granito, madera y vidrio se combinan para dar solución tanto interior como exterior a superficies horizontales y verticales.El vidrio y el granito son los principales materiales empleados, una mezcla de transparencia y firmeza, de vació y materia.