CASA DE CULTURA GARGANTA DE LOS MONTES

  • UBICACIÓN Garganta de los Montes. Madrid
  • FECHA 1998
  • EN COLABORACIÓN CON Francisco Domouso / Ginés Garrido
  • FOTOGRAFÍA Ángel Baltanás

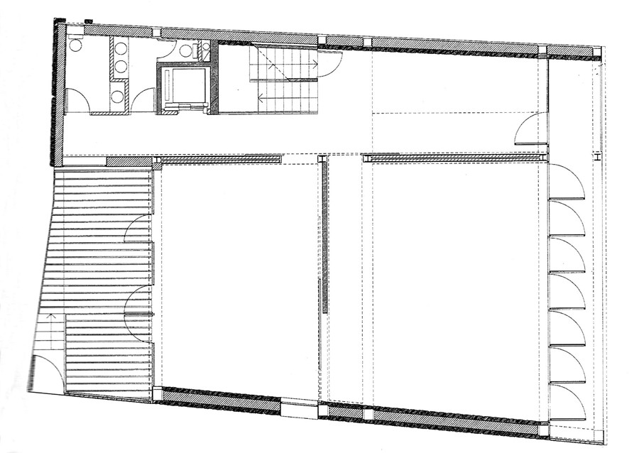
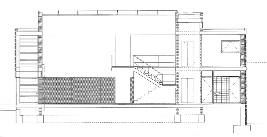
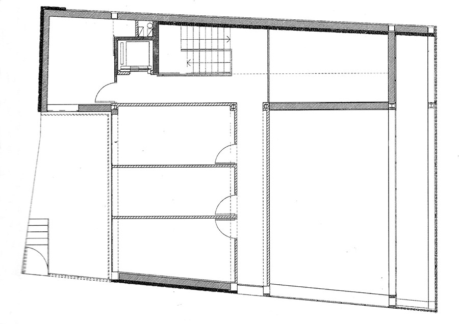
El edificio se construye en un solar de perímetro irregular contiguo a la Casa Consistorial. La escalera, el ascensor y los servicios se adosan a la medianera, regularizando la geometría del solar. Se libera el espacio para una sala multiuso en doble altura que puede abrirse completamente a la Plaza del Ayuntamiento y un club de Ancianos que se amplía con un patio que ya existía en el parcelario.

El interior, con una geometría autoordenante, busca la luz y el calor. El exterior, de madera y piedra, se acomoda a la arquitectura rural.Los huecos se abren sin obscenidad donde el orden interior lo señala.