CEIP EN SANTA CRUZ DE BEZANA

  • UBICACIÓN SANTA CRUZ DE BEZANA. CANTABRIA
  • FECHA 2009

Se propone un proyecto unitario y conjunto de edificación y espacio libre. Edificio y Parcela son un único objeto que simultánea e indisolublemente unidos. Todo el aire (el cerrado, el cubierto y el descubierto) es colegio.

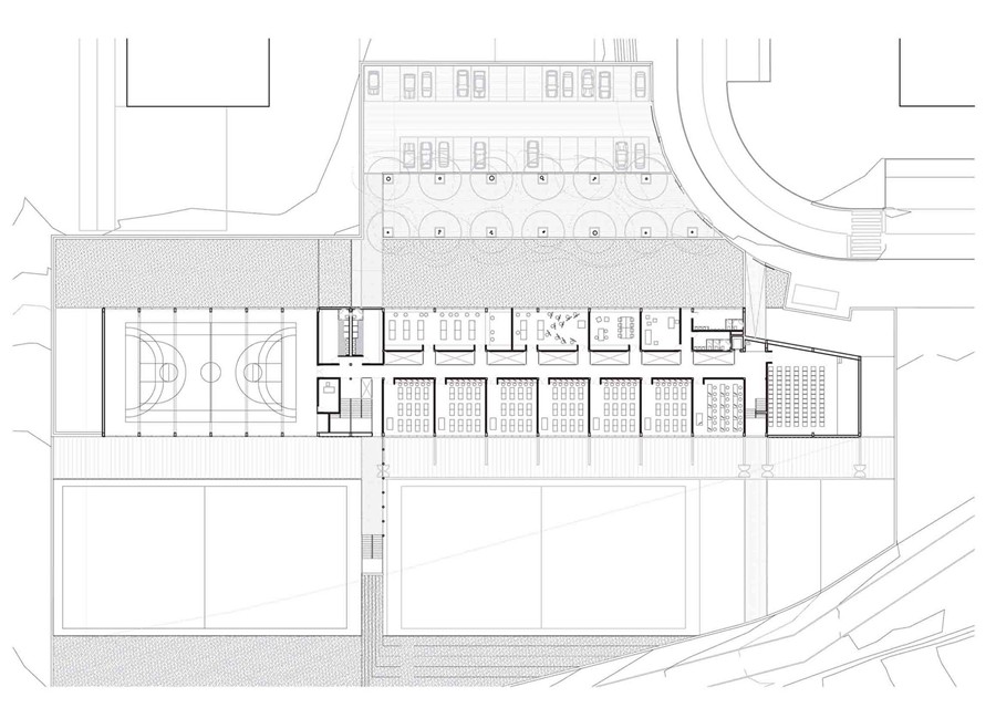
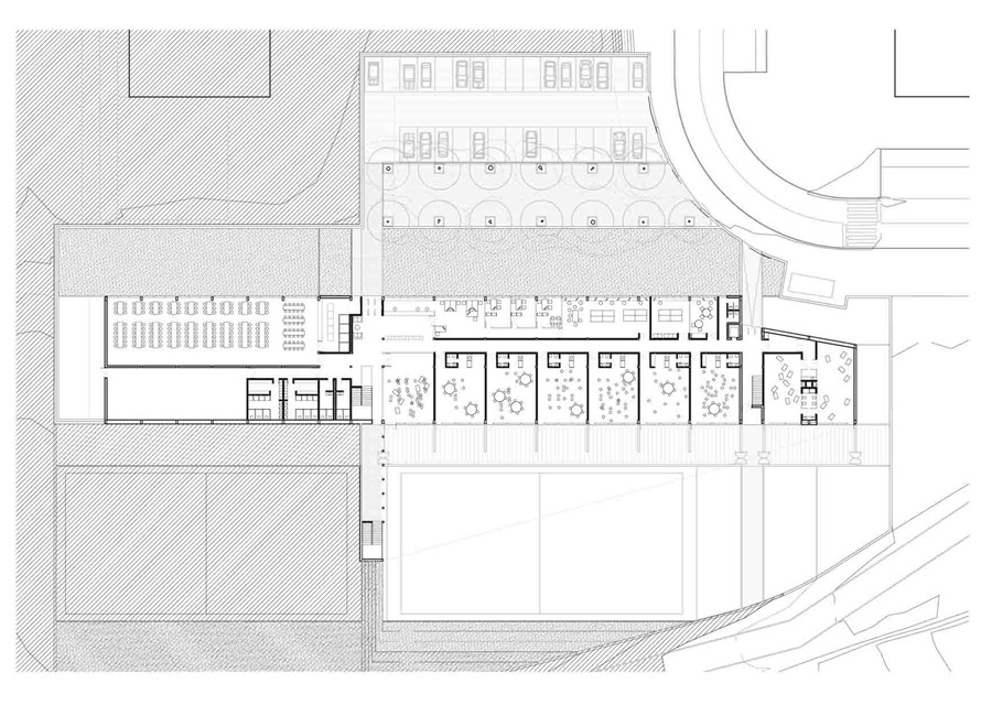
Esta propuesta estima más relevantes los criterios de iluminación óptima(ventanales al Sur, con luz más vertical, fácil de controlar con mínimos dispositivos constructivos) y vistas hacia la suave ladera poco construida situada al otro lado de la Autovía, que los de proyección contra ruido a los que se atenderá proyectando aislamiento acústico allí donde sea preciso.Las aulas de mayor permanencia dispondrán de vistas hacia el horizonte más amplio, hacia la propia parcela escolar, hacia los patios de juego y hacia el sur. Los despachos individuales y las aulas de uso ocasional hacia el horizonte más cercano y urbanizado, situado hacia el norte.

El nuevo colegio se concibe como un "edificio público".  A tal condición se le supone aquí cierta voluntad de poner orden en el entorno y de ejemplarizar desde la arquitectura con la proposición de una "forma verdadera",alejada del exhibicionismo y la falsificación que hoy son comunes. Su construcción será su modo de expresarse.

El programa escolar, reflejo del sistema educativo que lo sustenta, es facilitado por la Consejería. Nuestra propuesta agrupa las actividades afines y las dispone racionalmente sobre la parcela atendiendo sus condiciones.

De los 8500 m2 de superficie de la parcela, casi 2400 deben quedar libre de edificación por estar incluidos en la zona de salvaguarda de la Autovía. Otros 1500 m2 deberán quedar libres de edificación a causa de los retranqueos a los lindes y frente de parcela. En total, más de la tercera parte de la parcela.

Es decisión de proyecto el integrar esta amplia zona dentro del funcionamiento óptimo de la parcela. Se destinarán a espacios libres, zonas de juego, pistas deportivas, etc..evitando proyectar "partes de atrás" o "áreas de dudosa capacidad de uso".