CEIP GABRIEL DE MORALES

  • UBICACIÓN Melilla
  • FECHA 2015-

La educación es una ACCIÓN SOLIDARIA de toda la comunidad.Proyectar un contenedor que facilite la tarea educadora de los adultos y los descubrimientos vitales de los alumnos es el fin principal de nuestro trabajo.

Sólo puede devenir aquello que el lugar permite.

La diversidad programática propuesta para este tipo de centros obliga a agrupar áreas temáticas, construyendo más un sistema que una planta en el sentido tradicional del término. Este sistema permitirá, una vez desarrolladas las distintas áreas, incorporarlas a la lógica del conjunto.

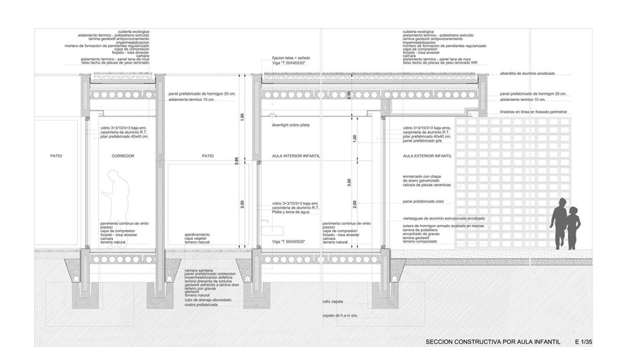
La voluntad del proyecto es buscar la máxima simplificación y repetición de las soluciones constructivas que permitan su pre-fabricación y un rápido proceso de ejecución de las obras, y conseguir también una imagen de sobriedad que entendemos adecuada a este tipo de edificios y que además ofrecerá un bajo coste de mantenimiento en el curso del tiempo.

El argumento fundamental en la proyección del nuevo edificio es la determinación del esquema en forma de espina de pez, del que se concluyen gran número de las decisiones proyectuales. La principal el organizar y clasificar las diferentes construcciones según sea su uso o condición, docente o de otra característica funcional. El eje que relaciona los sucesivos dedos que constituyen la espina básica se erige como eje fundamental de los recorridos interiores del inmueble, verdadera calle pública a lo largo de la que se acumula gran parte de las circulaciones y distribuciones interiores del centro. Se trata de un esquema claro con circulaciones directas y sencillas .