CENTRO CÍVICO EN GUMPOLDSKIRCHEN

  • UBICACIÓN Gumpoldskirchen . Austria
  • FECHA 2015-
  • EN COLABORACIÓN CON Carmen Espegel / Concha Fisac
  • OTROS COLABORADORES Maike Hübner / Ana Amo / Pedro Torres / Eva Niño / María Eugenia Diego / Ilaria Pittana / Loreto Jiménez

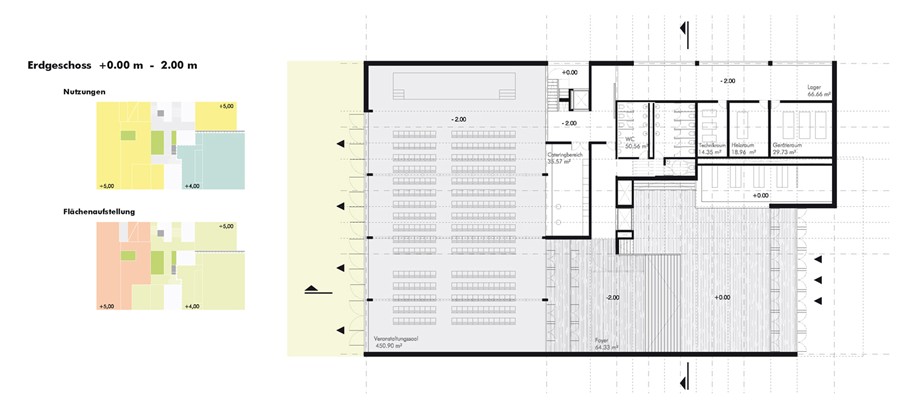
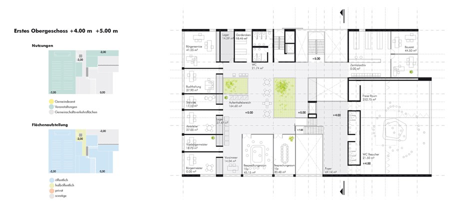
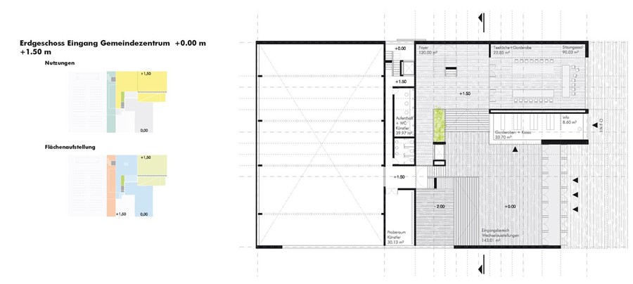
El nuevo Centro Cívico de Gumpoldskirschen, que en su estado final tendrá unos 3.500 m2 construidos, se situará en una parcela plana horizontal de aproximadamente 7.500 m2 de superficie.Se construirá en tres fases. En esta 1ª fase deberán definirse los 2.500 m2c destinados a Oficinas Municipales y sala de Eventos así como la totalidad del espacio público. En la 2ª los aproximadamente 1.200 m2c del Centro de Salud y la Farmacia y en la 3ª los 300 m2 del Centro Social.

Estrategias

Liberar la mayor cantidad desuelo posible para destinarlo a espacio público. Concentrar toda la edificación de la 1ª fase en un único edificio compacto (edificación principal) para mejorar su factor de forma y su rendimiento energético. Esta edificación principal se situará cerca del vértice norte de la parcela para que no arroje sombra sobre el espacio público y cerca de la calle Shellmanngasse para formar,junto con ella, una plaza de acceso al recinto de carácter urbano. Atenuarla presencia visual del cementerio disponiendo algún tipo de barrera vegetal o visual. Equilibrar la sobriedad volumétrica externa con el proyecto de un interior transparente en el que sea fácil situar y relacionar todas las actividades previstas. Disponer vacíos o patios internos que, además de relacionar visualmente las distintas áreas de la edificación principal, cumplan cometidos de control climático (captación de energía, ventilación, etc). Optimizar el recurso “orientación solar” abriendo huecos grandes a sur y a oeste, así como disponer lucernarios amplios en la cubierta.