CENTRO CULTURAL "LAS FRONTERAS"

  • UBICACIÓN Barrio de las Fronteras (Torrejón). Madrid
  • FECHA 1994
  • EN COLABORACIÓN CON Francisco Domouso / Ginés Garrido / Carmen Espegel / Antonio Miranda

"Tres tristes tigres"

Una frontera en el barrio de Las Fronteras. Una frontera con un suburbio que ha de llegar a ser polis-civitas-ciudad. Los conceptos son pocos, fuertes y claros. Del suburbio hostil de Pasolini a la ciudad amable de Fellini. Un todo -gestalt- gran caja de cajones autónomos capaz de sobrevivir en una medio endurecido.

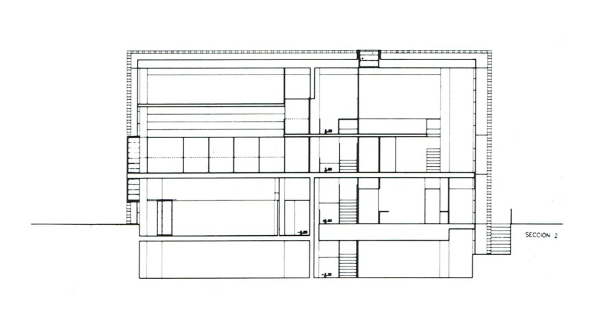
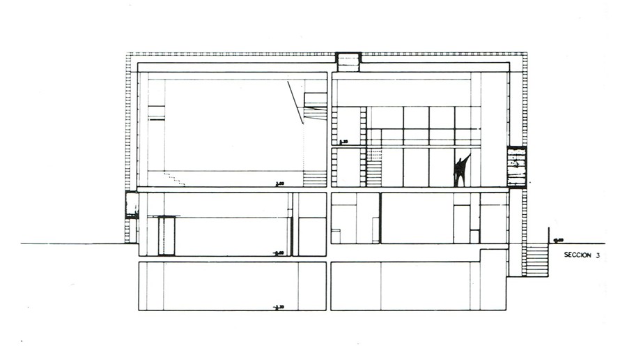
La construcción es compacta y sin escala. Un cajón de traviesas de ferrocarril cubre de modo casi completo fachadas y cubierta sin expresar su espacio interior ni exteriorizar su uso. El edificio responde al medio hostil y suburbana como un erizo; solo se abre, mediante unos ojos-lugar,allí donde la función interna la indica.

La piel exterior de traviesas cierra su intersticio cuando la necesidad de luz es menor o la orientación lo exige. Al interior un cerramiento de vidrio recorre todo el edificio. Así este se transforma en un volumen vibrátil sin color ni forma.

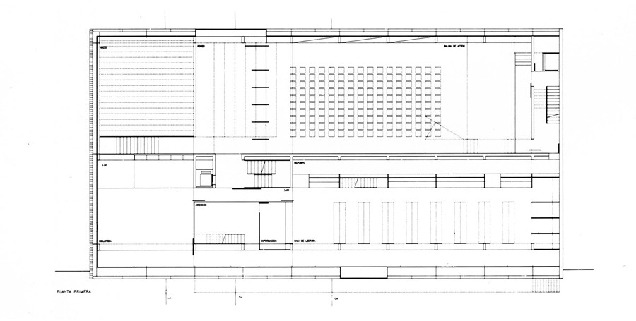
En planta baja se aprietan los espacios más pequeños, así la estructura resulta más densa y sus vanos menores. En la planta primera la estructura salva luces mayores, y pierde pilares donde el uso requiere espacios diáfanos: biblioteca y salón de actos. Adosados al muro medianero y en la espina central se concentran los aseos, almacenes, e instalaciones que no necesitan luz natural, mientras, aulas, administración, biblioteca y estancias se abren a las fachadas acristaladas casi blindadas por la celosía de traviesas.