CENTRO CULTURAL Y ESCUELA DE MÚSICA

  • UBICACIÓN Meco. Madrid
  • FECHA 2006
  • EN COLABORACIÓN CON Francisco Domouso
  • FOTOGRAFÍA Ángel Baltanás

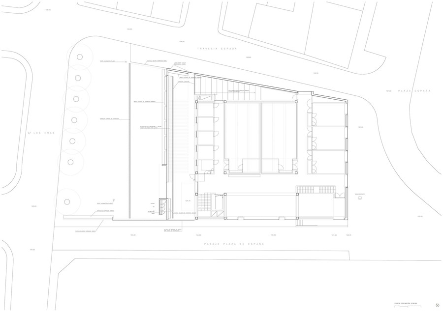
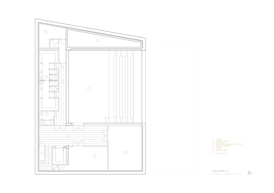
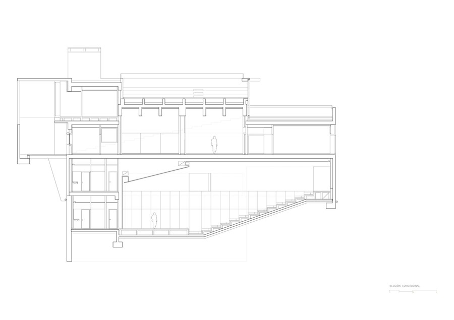
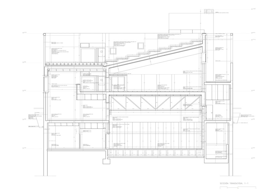
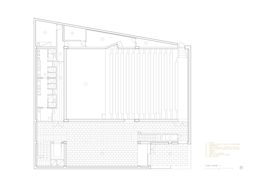
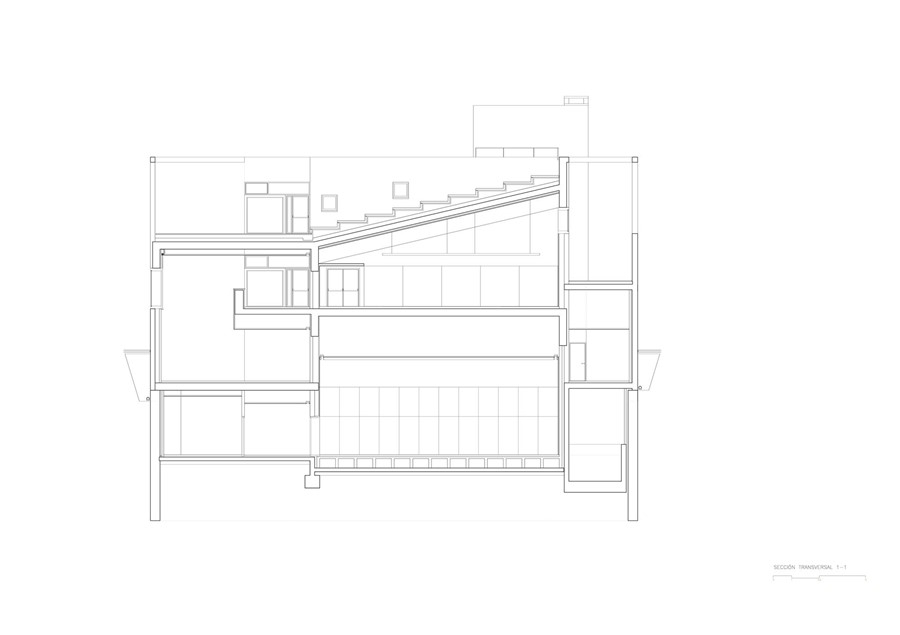
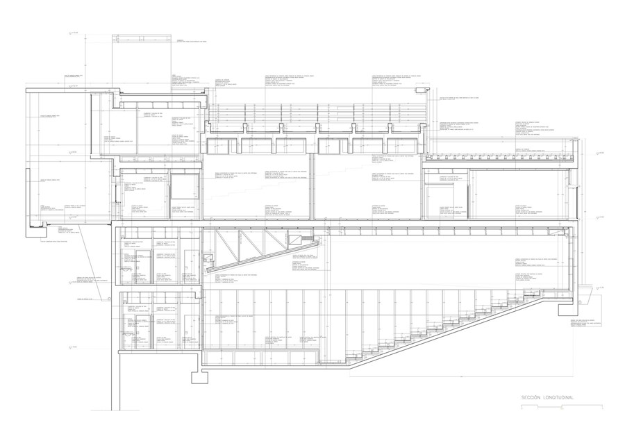
Se trata de un edificio de uso polivalente destinado a Centro de Cultura y Escuela de Música de 4 plantas. El edificio se resuelve con planta compacta adaptándose a la geometría del solar existente y ocupando la parte inferior y sur del mismo. Así mismo, el edificio, se adapta a la topografía existente en fuerte desnivel, ordenando su programa de usos de manera estratificada, por capas independientes de usos diferenciados. El resultado de todo esto es que el edificio se organiza con dos entradas situadas en fachadas opuestas (fachadas norte y sur) y plantas distintas (plantas semisótano y baja). Cada una de estas entradas da acceso a usos claramente diferenciados. Un vacío recorre longitudinalmente el edificio fundiendo usos y plantas, permitiendo un uso y percepción complejo del mismo. Este vacío conforma el lugar de relación principal del edificio cualificándolo espacialmente y significándolo como edificio público, y esponja su limitada superficie interior.

La actuación apuesta por un volumen  de contornos rotundos capaz de afirmar su autonomía frente a un entorno heterogéneo residencial y reciente de viviendas unifamiliares de suburbio sin ningún interés arquitectónico, y de otras tradicionales con las que sí, se quiere dialogar. Se elige la abstracción popular como estrategia compositiva en los alzados. Los huecos aparecen allí donde son necesarios por el uso interior o las vistas, como en la arquitectura popular tradicional, siempre abstracta. Zócalos y recercados resueltos con nuestra piedra actual: “el hormigón armado”; los revocos blancos, así como la escala y tratamiento volumétrico del edificio proyectado, colaboran en la inserción del mismo en la Villa de Meco.