Proyectos
CULTURAL / EDUCACIONAL
TERCIARIO / SALUD
INFRAESTRUCTURA
REHABILITACIÓN / INTERIORISMO
RESIDENCIAL UNIFAMILIAR
RESIDENCIAL PLURIFAMILIAR
Estudio
Socios
Equipo
Perfil
Premios
Colaboradores
Noticias
Publicaciones
Contacto
ES
EN
facebook
linkedin
pinterest
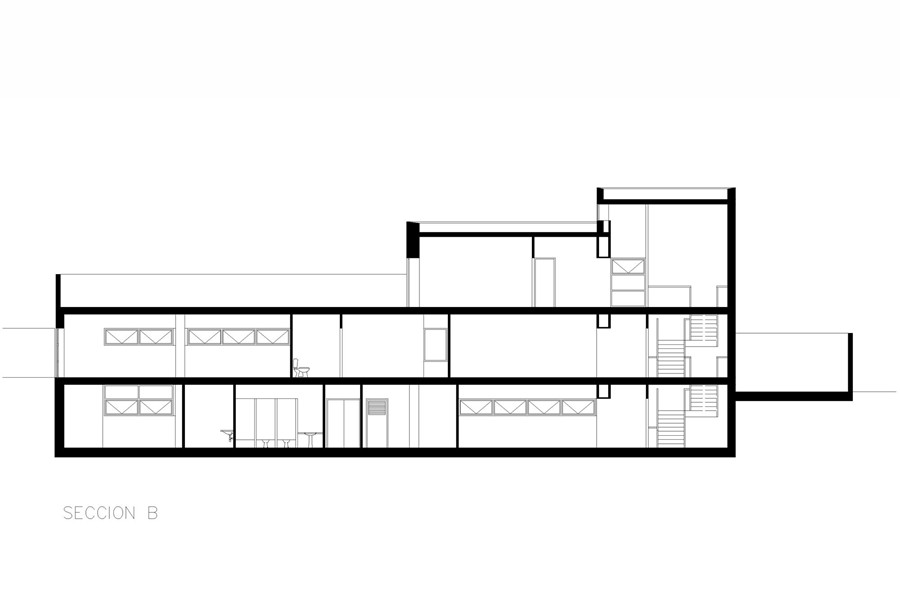
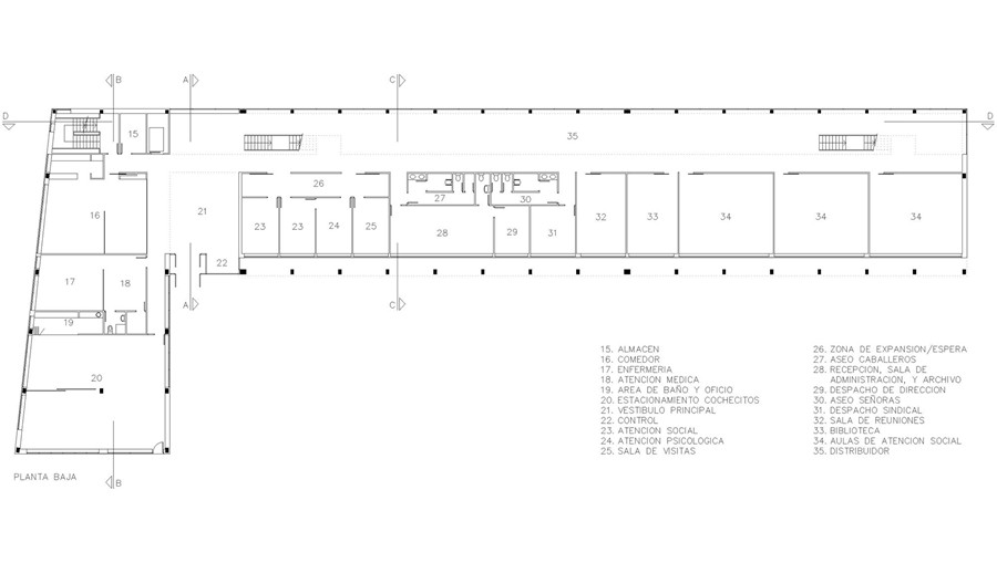
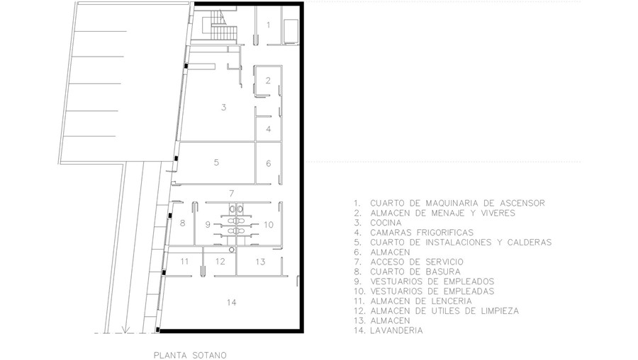
CENTRO PRIMERA ACOGIDA DE MENORES
Share
facebook
twitter
pinterest
FECHA
1997
EN COLABORACIÓN CON
FRANCISCO DOMOUSO / GINÉS GARRIDO / ANTONIO MIRANDA
***
atrás
alante