Adaptación de un local comercial existente en el Polígono Európolis, destinado a la instalación de una clínica de fisioterapia, de acuerdo con la normativa vigente en la Comunidad de Madrid para centros de esas características.
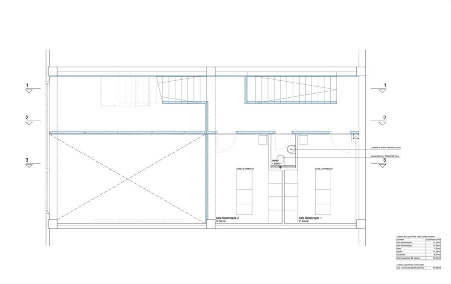
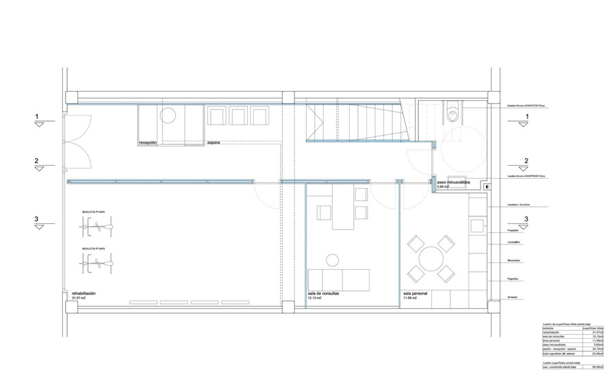
Se trata de una pequeña nave de la misma tipología de las que componen el Polígono Európolis. Construida con placas y pilares de hormigón armado, consta de tres niveles, planta baja y dos entreplantas que ocupan aproximadamente el 50% de la ocupación en planta, conectadas por dos tramos de escalera de trazado recto.
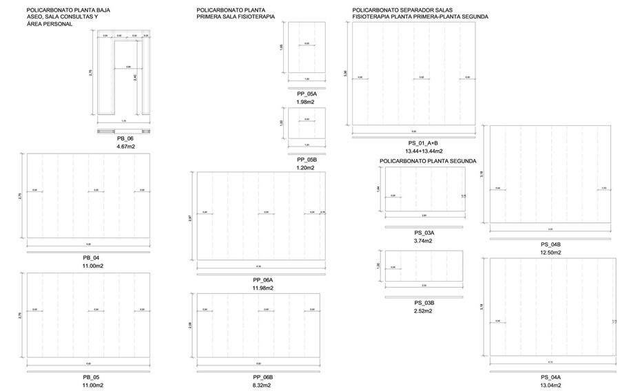
El local se cierra a la C/ Módena mediante una sola mampara acristalada sobre perfiles de aluminio. El hecho de que sólo haya un frente iluminado obliga a la búsqueda de soluciones de tabiquería que permitan la entrada de luz a todas las estancias. Finalmente se usarán tabiques de policarbonato celular de 4 cm de espesor sobre perfiles de aluminio en forma de “U”. En los casos donde se superan los 2,5 metros de altura se utiliza una estructura auxiliar de perfiles de acero duplicándose la piel de policarbonato para dejar oculto el esqueleto estructural.
Los remates superiores y laterales de las tabiquerías son resueltos en madera lacada en blanco y/o perfilería de aluminio mientras que en los suelos se instala linóleo sobre el pavimento existente.
