EDIFICIO DE OFICINAS PARA SEGIPSA

  • UBICACIÓN TARRAGONA
  • FECHA 2011
  • EN COLABORACIÓN CON FRANCISCO DOMOUSO

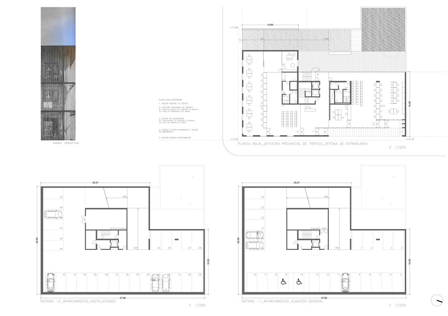
La propuesta propone 3 accesos al edificio:

Acceso principal del edifico: Da acceso a un espacio de distribución desde el que se accede al núcleo de comunicación vertical. Está protegido del sol y la lluvia por un nártex retranqueado respecto a la alineación de calle.

Acceso independiente a la Oficina de extranjería. Está protegido del sol y la lluvia por un nártex retranqueado respecto a la alineación de calle.

Acceso a la zona ajardinada interior de manzana. Esta salida es además necesaria desde el punto de vista dela normativa de incendios para la evacuación del edificio, ya que por sus condiciones de ocupación, necesita dos salidas a espacio exterior seguro.

Se ha proyectado un nuevo núcleo de servicio y comunicaciones verticales, que cumple todos los requisitos de accesibilidad recogidos en el CTE DB-SUA.

Este núcleo aglutina las escaleras y 2 ascensores, 2 aseos por planta (uno siempre adaptado a personas con movilidad reducida) y una zona para máquinas expendedoras.

La zona de estancia que sirve de ante-aseos, está iluminada naturalmente, abriéndose al patio interior de manzana. Este espacio da la opción de establecer una doble circulación interna, si el programa de usos de la planta lo demandase.

El núcleo vertical del edificio se ha desplazado al vértice interior de la planta, liberando las 2 fachadas a calle. Se proponen 2 escaleras independientes que constituyen sendos sectores de incendio (ambas escaleras están dimensionadas atendiendo al número de personas estimado a evacuar en cada caso):

       -Una escalera sobre rasante de comunicación entre plantas (para cumplir con el CTE DB SI, en las plantas que lo precisen se colocarán rociadores, con la que la distancia de evacuación se aumenta en un 25%, llegando a los 31,25 m desde el punto más desfavorable a la salida del sector).

       -Una escalera bajo rasante decomunicación del aparcamiento con la planta baja del edificio.

       -Ascensores: Se proyectan 2 ascensores, uno de los cuales accede a los sótanos de aparcamiento y tiene carácter de montacargas.

Con la nueva disposición y configuración del núcleo, las circulaciones horizontales por planta se simplifican y flexibilizan totalmente permitiendo genéricamente las siguientes 2 opciones:

       -La planta puede dividirse en varias áreas de usos claramente diferenciados, articulados en torno a un pasillo de movimiento central a la crujía del edificio, que recorre toda la planta.

       -La planta puede constituir una única área, como oficina paisaje, con o sin apoyo de despacho, salas de reuniones o archivos.

Pensamos que la imagen urbana de un edifico administrativo debe responder al carácter público del mismo.

Por un lado proyectamos un edificio estadístico, con huecos regulares que responden perfectamente a la necesaria flexibilidad del uso administrativo y a las futuras adaptaciones de programa que tendrá el edificio.

Por otro lado, envolvemos el edificio con una celosía ligera vertical, con diferentes inclinaciones según la planta y la orientación, que protege al edificio de radiaciones solares y mejora su control lumínico.

Esta celosía se interrumpe atendiendo al programa de usos interiores y a recuerdos de arquitecturas aprendidas. La celosía consolida la escala y carácter urbano del edificio.Pretendemos pues una imagen rotunda, unitaria, que dé al edificio la escala y carácter de un edificio administrativo, pero que su vez, a través de las transparencias de la celosía, se intuya una fachada de hormigón blanco, de hueco regular, de escala humana.

En el plano 4_5 de la propuesta arquitectónica se recogen los alzados y las secciones donde se pretenden recoger los aspectos antes señalados (se introducen también imágenes parciales que pueden avanzar, de manera abstracta, la imagen del edificio).

Por otro lado, y dadas la proximidad del mar y las condiciones climáticas de Tarragona, el hormigón blanco garantizará un envejecimiento noble y de bajo mantenimiento del edificio.