EDIFICIO USO TERCIARIO

  • UBICACIÓN MADRID
  • FECHA 2017
  • EN COLABORACIÓN CON Francisco Domouso

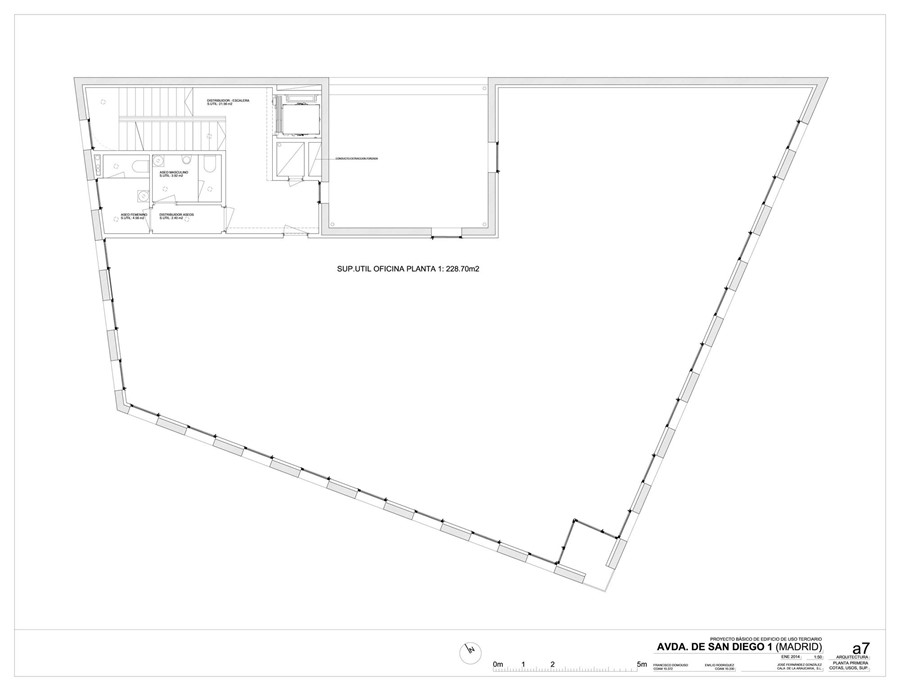
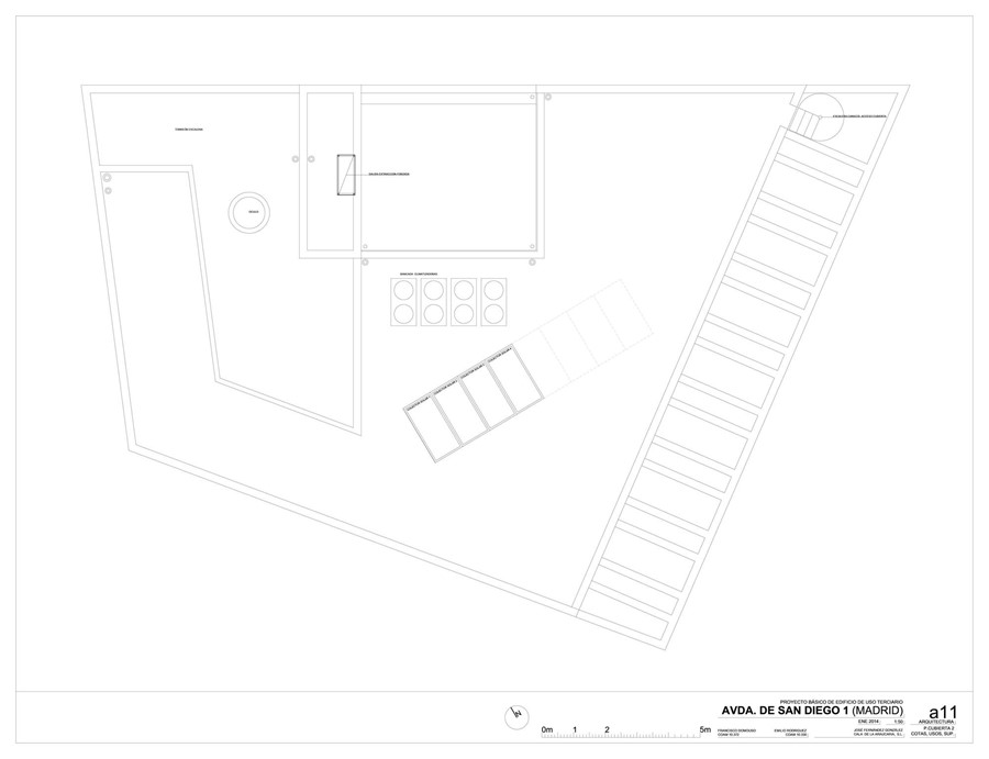
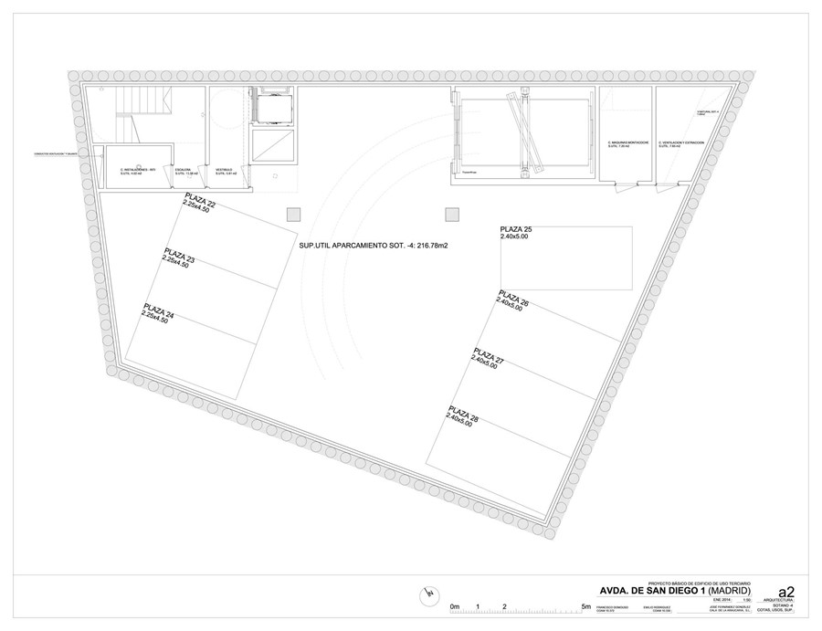
Edificio de oficinas desarrollado en colaboración con Francisco José Domouso de Alba hasta nivel de definición de Proyecto Básico. Francisco Domouso completará posteriormente el proyecto de Ejecución y se encarga en solitario de la dirección de obra.

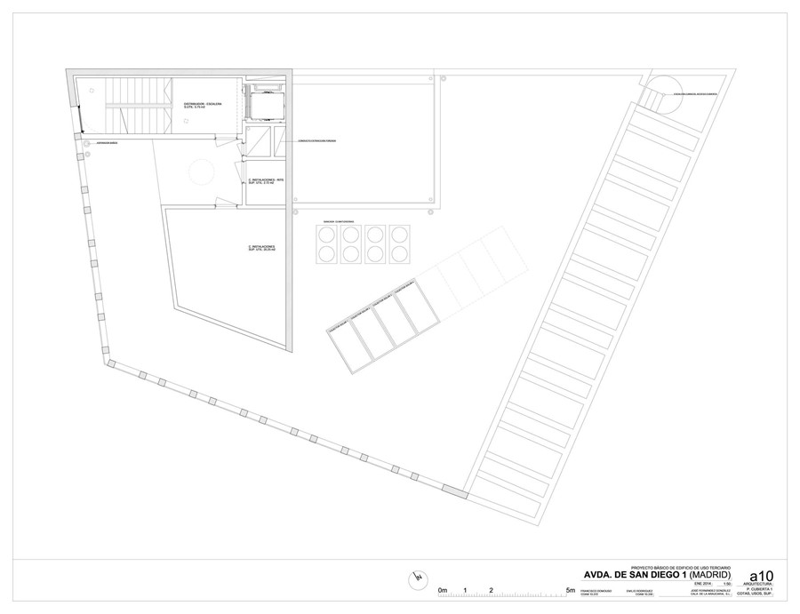
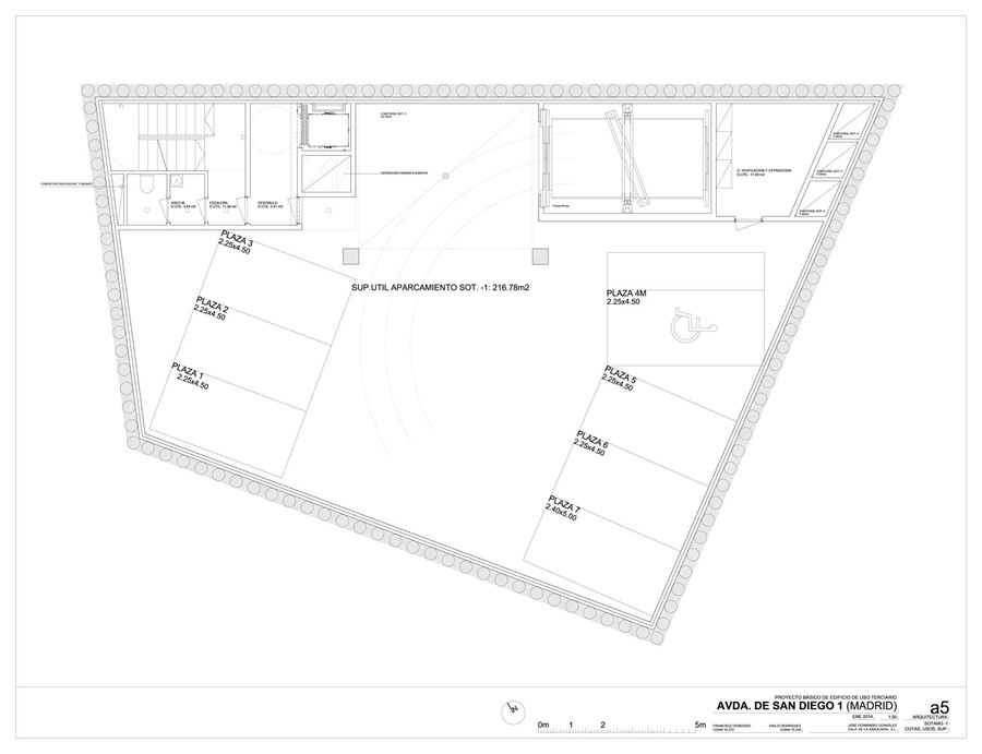
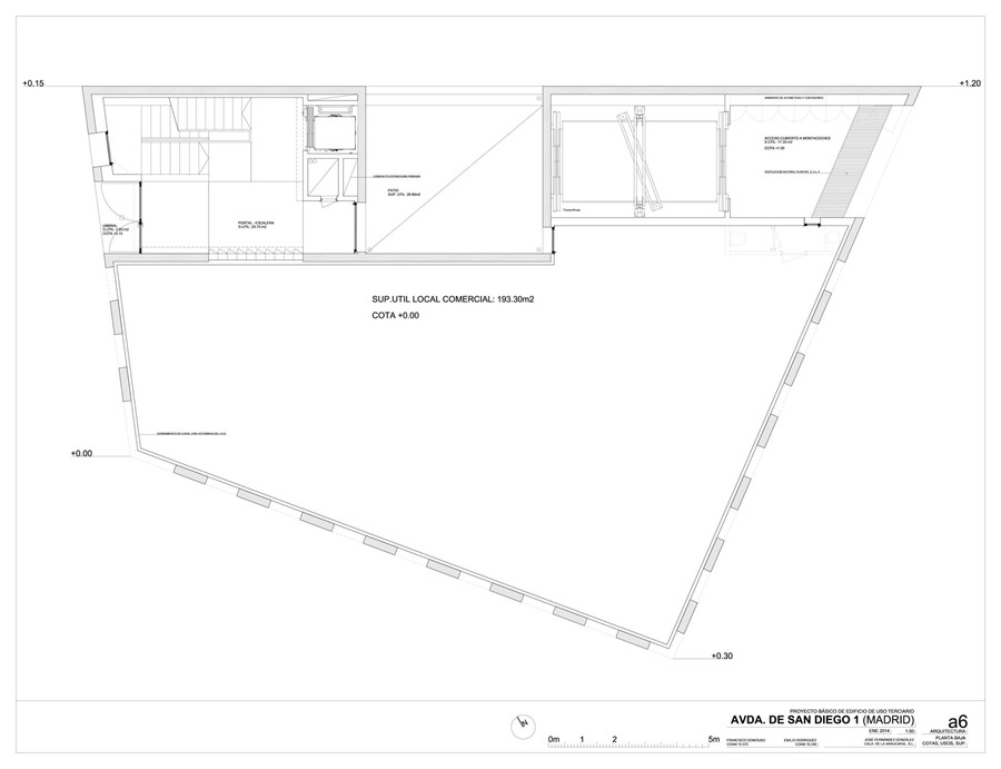
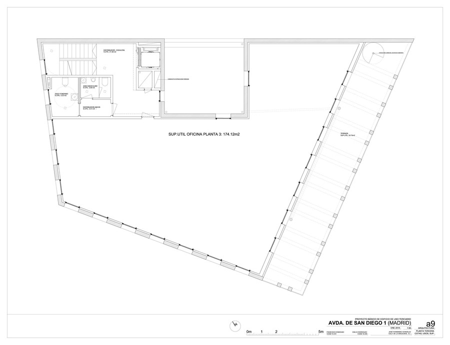
El edificio cierra una pequeña manzana urbana cercana a Méndez Álvaro, el entorno está constituido por edificios residenciales construidos en los años 70 de calidad media baja sin ningún interés arquitectónico. La proximidad de la línea de acceso ferroviario por el sur a Madrid singulariza el lugar, y motivó el uso del hormigón como principal recurso material.

Cuando se redactó el proyecto básico se pretendía un uso del hormigón simple y sencillo, ejecutado "in situ", alejado de las tantas veces absurda y derrochadora sofisticación técnica que suelen tener las fachadas de los edificios de oficinas. El concepto elemental del tratamiento de los alzado será muy simple. Las ventanas poseían la misma unidad básica y estaban entrelazadas y relacionadas mediante franjas verticales y horizontales, creando un ritmo de llenos y vacíos clásico, suficiente recurso para definir su espacio interior, y suficiente recurso para su acomodo o facilidad de paso al fondo urbano. Se pretendía una fachada de geometría auto-ordenante de clara y directa lectura urbana. El tratamiento propuesto a algunos de los llenos o vacíos dibujados en sus fachadas de hormigón  y sitos en posiciones singulares (planta baja, áticos y terrazas, esquinas, etc.) cualificaba las fachadas sin más necesidad que la de la mirada atenta no afecta por gesto o moda pasajera.