ESCUELA DE MÚSICA Y BIBLIOTECA

  • UBICACIÓN Antiguos Mataderos (El Escorial). Madrid
  • FECHA 2001
  • EN COLABORACIÓN CON Francisco Domouso
  • FOTOGRAFÍA Ángel Baltanás

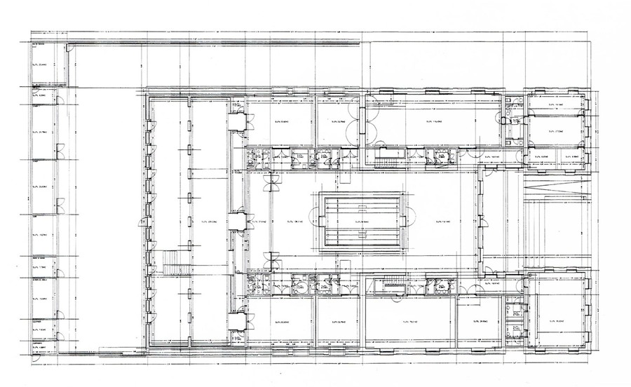
El objetivo del proyecto es doble. Por una parte pretende recuperar los pabellones primitivos mediante una rehabilitación rigurosa de los mismos, entendiéndose como un contenedor arquitectónico.

Por otra parte se opta por actuar con mayor libertad en la parte posterior para acoger los usos que no tienen cabida en el primitivo donde el edificio existente carece de interés.

El muro de los corrales se utiliza como unión de las dos actuaciones en principio tan distintas.

La solución propuesta resultante consiste en unos cuerpos con cubiertas inclinadas cuyos muros sonde granito y ladrillo con grandes ventanales en el frente contrastando con un volumen cúbico emergente al fondo con características muy diferentes.

Este último acoge a la biblioteca. Su fachada de material pétreo, está compuesta por grandes piezas prefabricadas. Este elemento que se levanta en la falda de Abantos, dota al edificio de un carácter singular propio de los edificios públicos.

La actuación también incorpora cuatro grandes lucernarios con objeto de proporcionar luz y ventilación interior. Éstos también se han tratado exteriormente con los mismos prefabricados.