ESTUDIO ARQUITECTURA

  • UBICACIÓN MADRID
  • FECHA 2004
  • EN COLABORACIÓN CON Francisco Domouso

El local se encuentra vacío, aparentemente en buen estado, y con los signos propios que provoca la falta de uso y  mantenimiento como: suciedad, fachadas con vidriería deteriorada y/o rota, pintadas, etc.

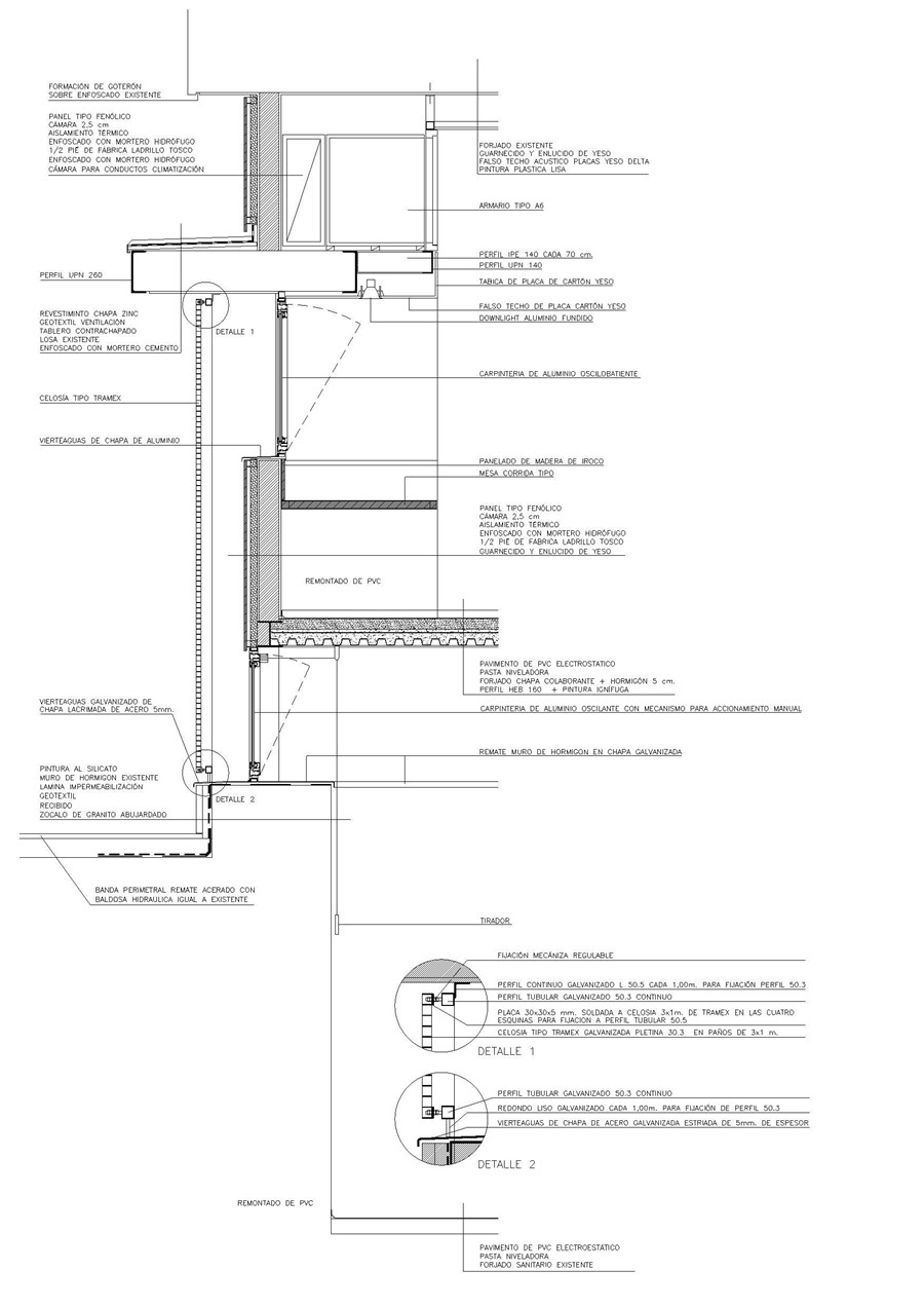
La estructura del edificio es de pilares y vigas metálicas,de sección compuesta, con forjados cerámicos de nervios armados in situ. La estructura  presenta un buen estado aparente. En planta sótano aparece un pórtico realizado con pilares de fábrica de ladrillo macizo que divide en dos la luz de la crujía exterior. Este pórtico no pertenece a la configuración original del edificio, entendemos que se realizó motivado por alguna fuerte sobrecarga de uso del forjado que soporta motivada por la actividad anterior realizada en el local. El proyecto incluye la demolición de este pórtico y el forjado que soporta, se propone una nueva configuración de los forjados más acorde al nuevo uso al que se destina.

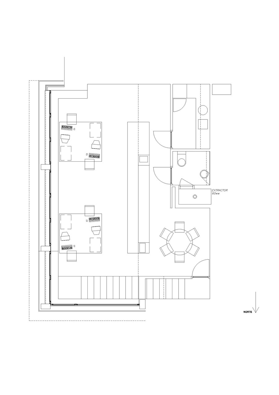
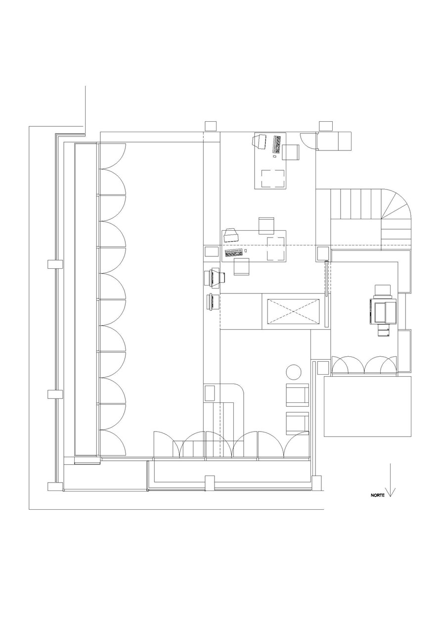
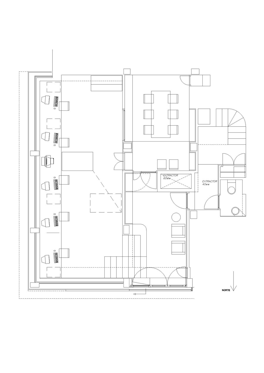
La solución adoptada consiste básicamente en la elevación del forjado de la primera crujía de planta baja 90 cm. Esta operación nos permite ventilar e iluminar la planta sótano y aporta privacidad a esta crujía (principal sala de trabajo) con respecto a la calle y al vestíbulo de acceso. Cualifica también las distintas plataformas de trabajo que surgen en el volumen interior, y por lo tanto, los distintos usos que se desarrollarán en las mismas; se logra una gradación de la privacidad de cada uno de estos planos de trabajo y de los usos en ellos desarrollados.

La solución proyectada ordena escaleras y cuartos de servicio de acuerdo a las nuevas necesidades programáticas y supone la sustitución y/o renovación de la totalidad de las instalaciones del local, así como una renovación integral de sus fachadas.