OFICINA ASUNTOS INTERNOS GUARDIA CIVIL

  • UBICACIÓN VALDEMORO. MADRID
  • FECHA 2008
  • OTROS COLABORADORES GERARDO MARCOS ALBADALEJO

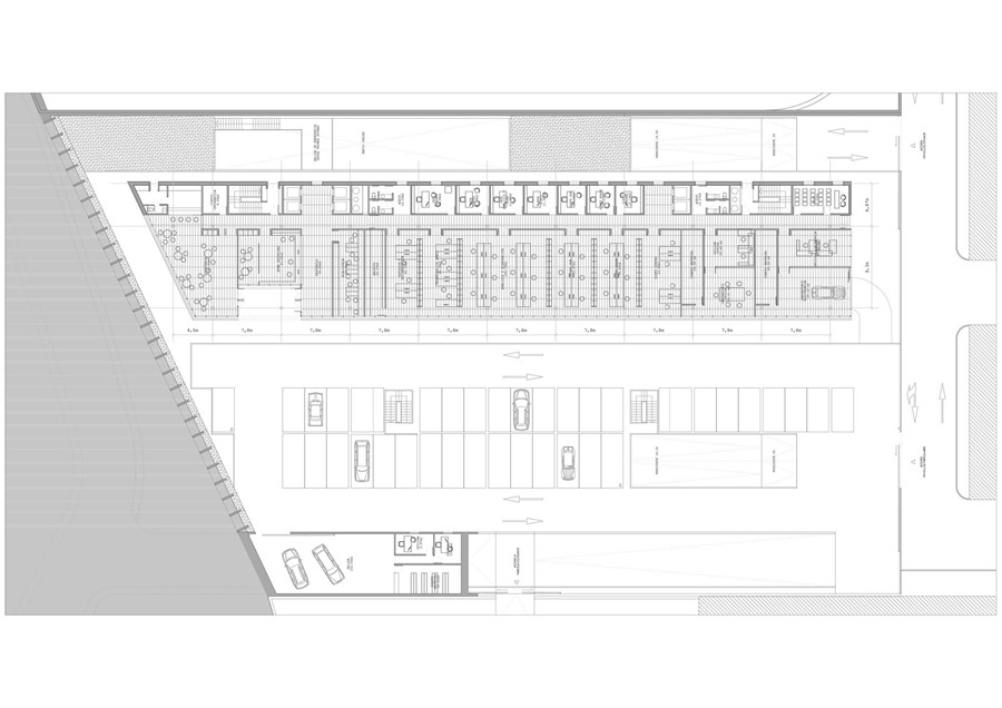
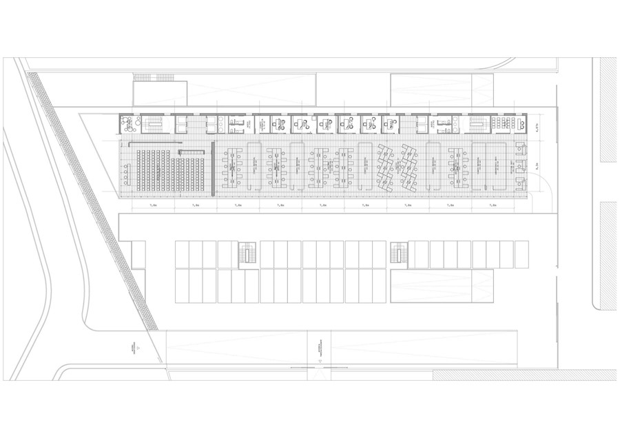
La edificación sobre rasante se dispone de modo que se optimiza la orientación, la accesibilidad y las vistas desde los lugares de trabajo.

Se proyecta un prisma rectangular con su lado largo en dirección N-S, que permite abrir hacia el Este las oficinas y hacia el oeste,protegerse con los espacios de servicio y los despachos individuales, de menor dimensión.

Así, la parcela se organiza, básicamente, en bandas paralelas de dirección Norte Sur y ancho variable.

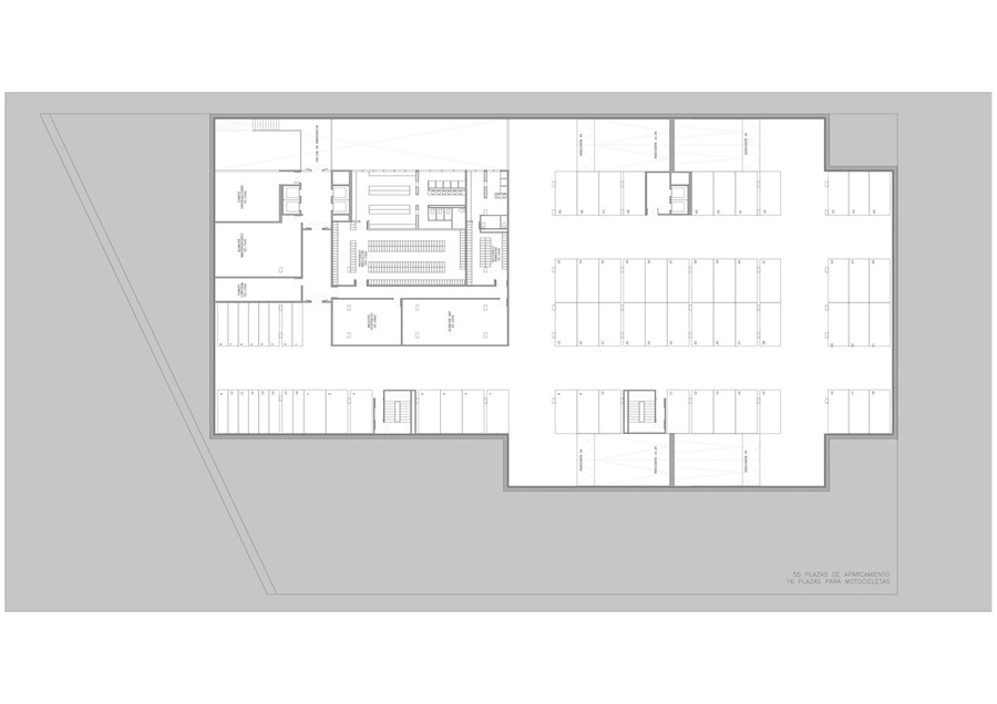
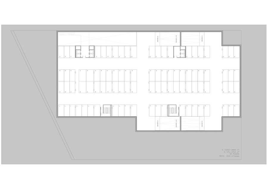
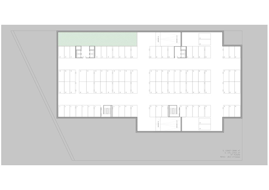
En la primera, situada al Oeste, limitando con una parcela ya edificada, se dispone una banda de 7’5 metros de ancho destinada a ubicar las rampas de acceso al aparcamiento subterráneo para vehículos oficiales. El resto de la franja se destina a un patio inglés, ajardinado, que permite la entrada de luz y ventilación a las dependencias ubicadas en 1º sótano y a los aparcamientos de los sótanos 2º y 3º.

En la segunda se dispone la edificación principal, prisma rectangular alargado que se abre por medio de una celosía cerámica al Este y ala parcela y se protege del Oeste abriendo huecos menores en un cerramiento de muro de ladrillo visto y disponiendo persianas enrollables de lamas orientables.

La tercera es el patio de llegada. En él se dispone el aparcamiento en superficie para vehículos privados y las rampas de acceso,también para vehículos particulares, a las plantas de aparcamiento subterráneo.

La cuarta franja se destina a una nueva rampa que permite el acceso directo al recinto del Colegio de Guardias Jóvenes. Desde el punto medio de la rampa se ha previsto un acceso a la parcela situada al Este. Bajo la rampa se dispone la zona de taller, con almacén y oficinas, con acceso directo desde el patio de llegada.

Se ha proyectado una estructura organizativa que permite disponerlos distintos componentes de cada “unidad” de un modo eficaz: los despachos individuales, que requieren un mayor grado de privacidad, cerrados, se sitúan en la franja de espacios servidores, en la inmediatez de la zona de oficina de su unidad con la que se conectan visualmente a través de ventanas o paños de vidrio.

Para proteger de la radiación directa y, al mismo tiempo,permitir la iluminación natural y abrir el edificio al entorno se proyecta la construcción de una celosía construida con sencillas piezas cerámicas prismáticas (12 x 24 x 18 cm.), hueca, que permite su apilamiento sin un implemento tecnológico significativo. Un pequeño cargadero metálico galvanizado (L ó T)anclado al forjado y apuntalado a los montantes verticales de la carpintería permite la apertura de una sencilla hendidura horizontal a la altura de la vista de las personas que están sentadas para aumentar su sensación de apertura.

Desde el interior se ve el exterior, del que sólo entra lo positivo (la luz y el paisaje) y se impide el paso a la radiación directa, el calor y las vistas.

Esta celosía, cerámica, tecnológicamente pasiva, fácil de mantener y de escasísimo envejecimiento enraíza con la tradición constructiva cerámica de Valdemoro y, al mismo tiempo, da una visión contemporánea del edificio, atento a su medio ambiente y ambientalmente sostenible.