Proyectos
CULTURAL / EDUCACIONAL
TERCIARIO / SALUD
INFRAESTRUCTURA
REHABILITACIÓN / INTERIORISMO
RESIDENCIAL UNIFAMILIAR
RESIDENCIAL PLURIFAMILIAR
Estudio
Socios
Equipo
Perfil
Premios
Colaboradores
Noticias
Publicaciones
Contacto
ES
EN
facebook
linkedin
pinterest
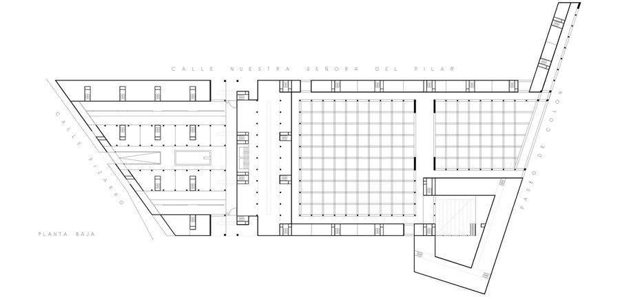
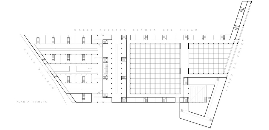
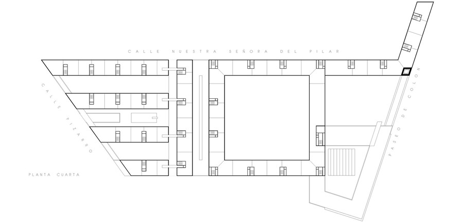
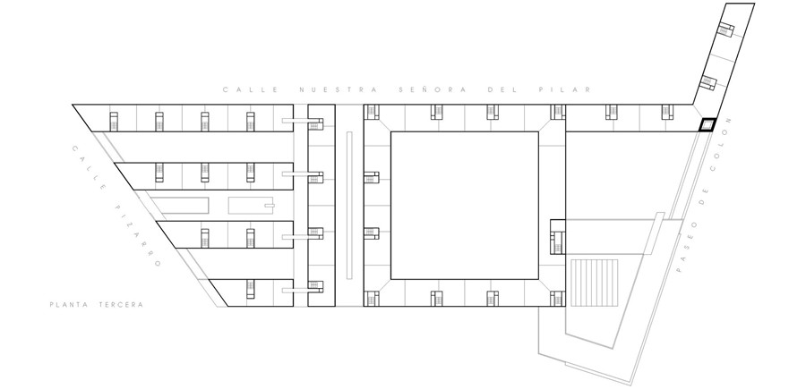
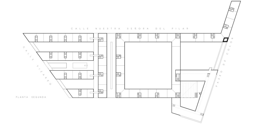
OPERACIÓN CENTRO-PLAZA MAYOR
Share
facebook
twitter
pinterest
UBICACIÓN
LEGANÉS. MADRID
FECHA
1999
EN COLABORACIÓN CON
FRANCISCO DOMOUSO
***
atrás
alante