REESTRUCTURACIÓN Y AMPLIACIÓN VIVIENDA

  • UBICACIÓN Otero de Herreros. Segovia
  • FECHA 2014

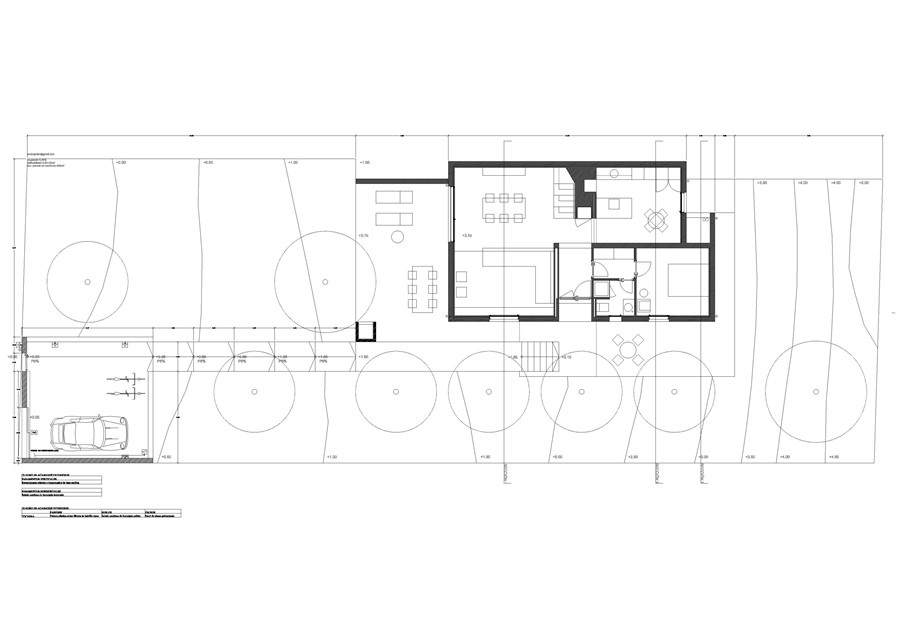
El proyecto contempla la reestructuración integral y ampliación de una vivienda pareada existente que en la actualidad se desarrolla en una sola planta.

El edificio existente está formado por una vivienda unifamiliar pareada de una sola altura. La definición arquitectónica de la vivienda actual responde a la tipología pareada habitual del lugar, sin complejidad tipológica ni constructiva. Las dos viviendas pareadas no comparten totalmente la fachada medianera de contacto, sino que se desplaza la una sobre la otra.Los huecos siguen la misma tónica de atonía arquitectónica de la tipología descrita, respondiendo de manera inmediata y poco meditada a una distribución más propia de un piso que de una vivienda en contacto con el terreno.

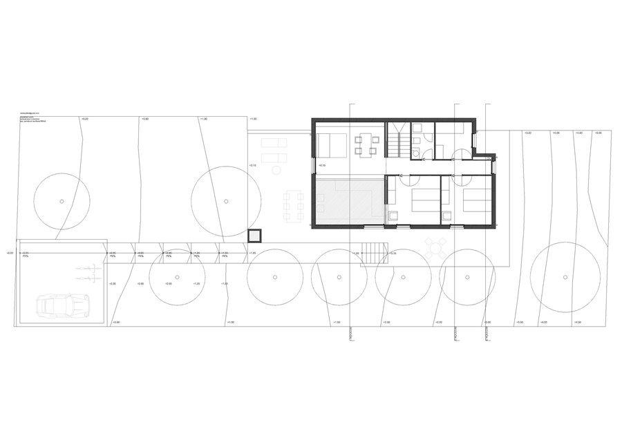
La vivienda se amplía en una planta. Se propone una actuación desarrollada en dos alturas que particulariza el programa y lo especializa por plantas en función de los parámetros arquitectónicos destacables que pensamos nos aporta la situación de la vivienda existente en la parcela.

La introducción de una doble altura en el salón sirve para establecer un hilo conductor entre el programa que se desarrolla entre las dos alturas de la vivienda.

Las fachadas aun manteniendo el trazado original, se alteran introduciendo huecos que responden a visuales panópticas que relacionan de manera fluida la vida interior de la vivienda con el jardín. Se han introducido huecos limpios que responden a la manera interior de vivir la vivienda, además de garantizar el adecuado soleamiento, aislamiento y ventilación.

Se recupera la estructura de la cubierta que se situará una planta por encima de su ubicación original.