ÁTICO CALLE IBIZA

  • UBICACIÓN MADRID
  • FECHA 2021
Reforma integral de un ático situado en la Calle Ibiza. 

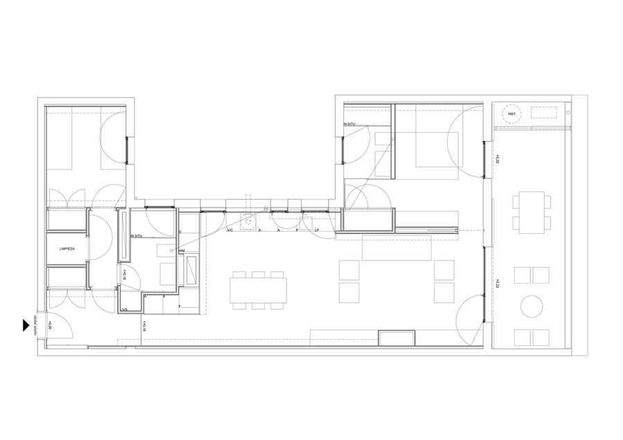
El proyecto se ajusta al programa exigido por el cliente: dos dormitorios en suite independientes con sus respectivos baños y vestidores, además de una amplia zona de salón-comedor diáfana que enfocara la terraza orientada al norte de la vivienda. 

El orden visual y una rigurosa métrica es el principal reto. La nueva disposición y diseño  de huecos realizados de suelo a techo,  supone dotar a la vivienda de una cualidad espacial más acorde con las necesidades de nuestro tiempo (continuidad y flexibilidad entre usos diferenciados). La chimenea existente se recupera y suspende del techo integrándola con un mueble bajo que sirve de almacenamiento al salón a la vez que permite el acopio de leña.

La paleta de colores y materiales se reduce al mínimo. El mobiliario escogido trata de respetar dicha gama cromática. La madera de roble y los tonos neutros son los protagonistas con algún destello puntual del latón. Para la terraza exterior se eligen sofá, sillones, mesa y sillas de la serie Palissade de Hay de acero galvanizado y acabado en tono verde oliva sobre la tarima flotante.