ESTUDIOS REFORMA CALLE IBIZA

  • UBICACIÓN MADRID
  • FECHA 2020
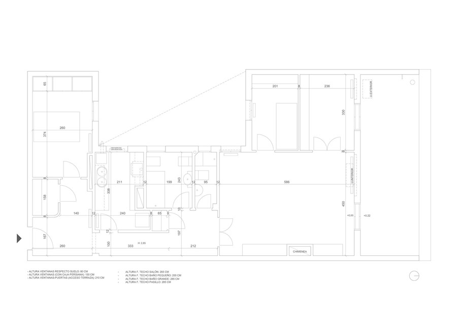
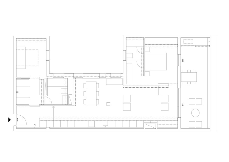
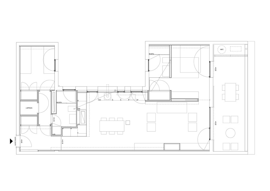
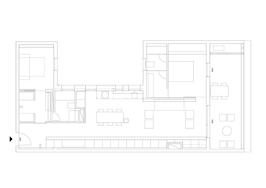
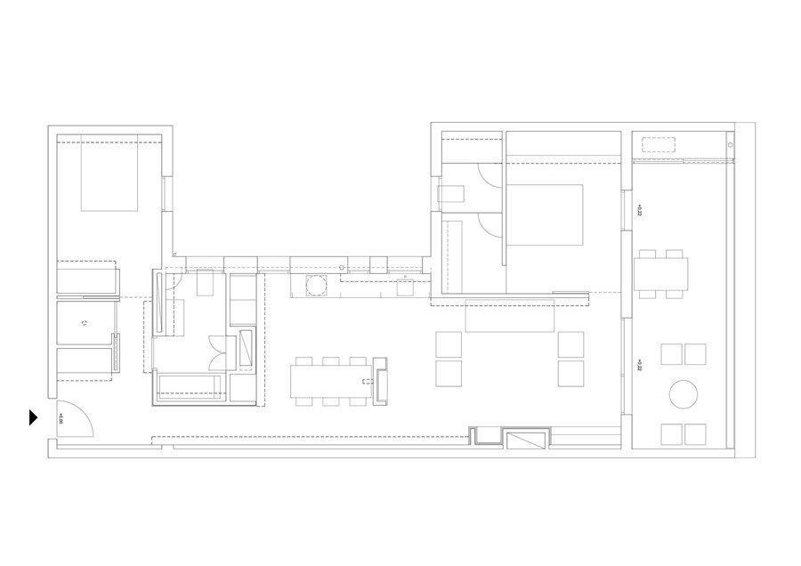
Reforma integral de un ático situado en la Calle Ibiza.

El proyecto se ajusta al programa exigido por el cliente: dos dormitorios en suite independientes con sus respectivos baños y vestidores, además de una amplía zona de salón-comedor que enfocara la terraza orientada al norte de la vivienda. El orden visual y una rigurosa métrica es el principal reto. La paleta de colores y materiales se reduce al mínimo.