RESIDENCIA EMBAJADOR DE OMÁN

  • UBICACIÓN La Moraleja. Madrid
  • FECHA 2013

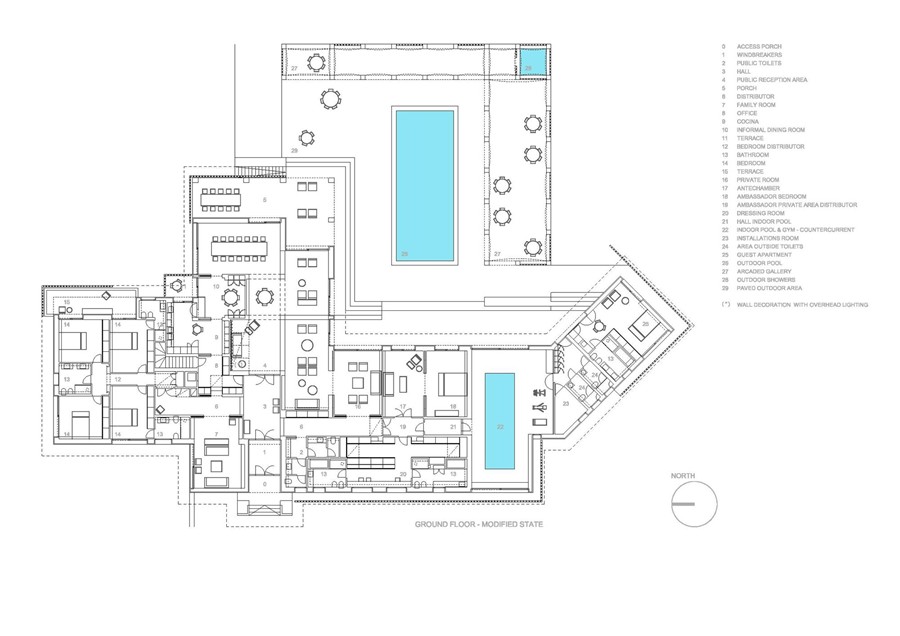
Tras una primera entrega de una propuesta de reestructuración de la planta semisótano de la residencia destinada a la mejora y ordenación del área de servicio, almacenamiento e instalaciones de la residencia, así como a la subsanación de desperfectos y deficiencias en instalaciones y urbanización exterior, se nos requiere para valorar y proponer solución de mejora al resto de la residencia (planta baja o planta noble) y espacios exteriores.

Para ello adoptamos tres líneas de actuación: la redistribución interior de usos y circulaciones mejorando la funcionalidad y calidad interna de la vivienda y su relación con los espacios exteriores, la creación de una galería porticada correlato de la vivienda que define un amplio patio exterior para actividades al aire libre tales como recepciones, cenas, etc., y la renovación de toda la envolvente exterior de la vivienda para conseguir la máxima eficiencia energética posible en la misma.