TEATRO Y EDIFICIO USOS MÚLTIPLES

  • UBICACIÓN Villarejo de Salvanés. Madrid
  • FECHA 2007-2008
  • EN COLABORACIÓN CON Francisco Domouso

El edificio está situado en una zona limítrofe del casco urbano de Villarejo de Salvanés, al sur del mismo, en la salida de la carretera de Valderacete. Se proyecta un edificio de programa polivalente,destinado a Centro de Usos Múltiples y Teatro. Se dispone paralelamente a la calle de la Ermita, aprovechando el fuerte desnivel para minimizar la presencia de la torre de escena y acomodar la geometría del patio de butacas.

Se proyecta un edificio de planta compacta, regular, de volúmenes rotundos, de fuerte presencia geométrica en un lugar disperso y de escaso interés arquitectónico.  Se accede al edificio desde una plaza que se abre al pueblo y se protege de la carretera mediante una tapia revestida de mampostería careada de piedra del lugar, que recorre la parcela, y cuando toca, recoge el zócalo del edificio. El muro de piedra, adaptando su geometría y recorrido a la topografía, une el edificio y la urbanización del mismo al lugar. 

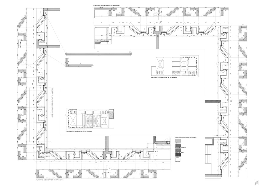
Se accede al vestíbulo principal, de doble altura, iluminado en sus dos fachadas, sur y oeste, por un muro perforado de hormigón armado, que tamiza, desde la geometría y la profundidad, la entrada de luz y sol.  Desde este espacio, se accede a la cafetería, a la sala del teatro y a las aulas de usos múltiples, situadas en el nivel +2 y +3, y a una pastilla lateral (situada al norte), ancha e iluminada por un muro cortina, que recorre el edifico longitudinalmente en toda su altura, flexibilizando su uso y posibilidades.  Ligada a esta pastilla, están los núcleos verticales de comunicación, tanto el principal como el auxiliar del teatro, así como aseos, servicios generales o camerinos. Es un espacio servidor de los usos principales del edifico.

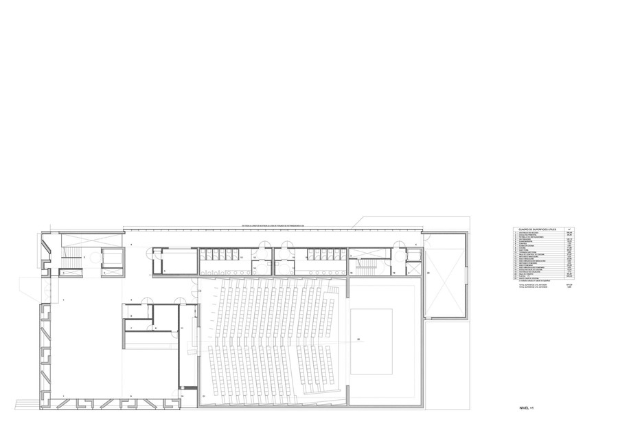
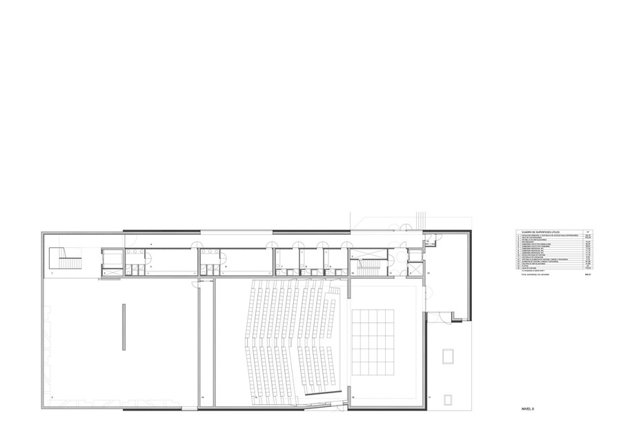
El teatro tiene un aforo de 417 butacas(incluidas las destinadas a personas con movilidad reducida, palcos y opcionales en el foso de orquesta). Se ha proyectado un edifico que cumple todos los requisitos para representaciones profesionales de teatro, música o danza. Tiene una escena de 9,90 m x 17,60 m, foso de orquesta, foso de escena y caja de escena con una altura al peine de 18 m. La boca de escena es de 12,00 m de ancho por 7,50 m de altura.  Se ha proyectado un puente de luces en sala, y una sola galería en la caja de escena,a cota +7,20 m, ya que se ha optado por motorizar todo el funcionamiento de la caja.

El edifico está dotado con todos los espacios e instalaciones necesarias para el funcionamiento del teatro, como se describe pormenorizadamente en el punto siguiente.

Las aulas de usos múltiples están situadas en el nivel +2 y +3. En el nivel +2, se sitúan además las oficinas administrativas del centro. 

En el nivel + 3, además de las aulas, se sitúa una gran terraza practicable, tratada como un espacio público más de recreo del mismo.

La actuación apuesta por un volumen de contornos rotundos capaz de afirmar su autonomía frente a un entorno heterogéneo residencial y “reciente” de viviendas de suburbio sin ningún interés arquitectónico, y de otras tradicionales con las que sí, se quiere dialogar.  Se elige la abstracción popular como estrategia compositiva en los alzados. Los huecos aparecen allí donde son necesarios por el uso interior y/o las vistas, como en la arquitectura popular tradicional, siempre abstracta.

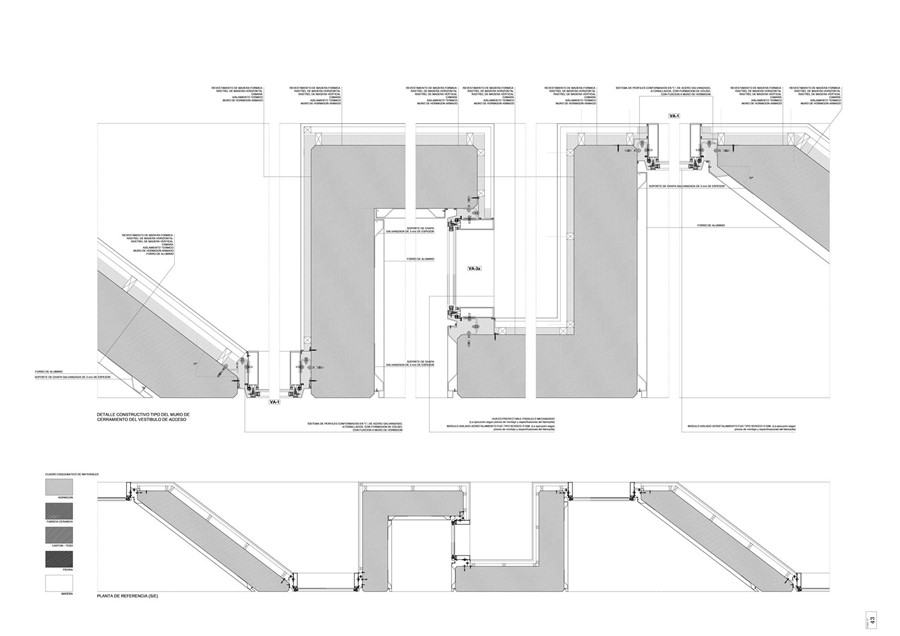
El zócalo se construye con piedra natural del lugar. El hormigón armado blanco se texturiza con bujarda o con encofrados de texturas rugosas. Su color blanco contextualiza el edifico en el lugar. Los materiales empleados en la construcción del edificio, así como los detalles constructivos desarrollados, tanto en el exterior como en el interior,garantizan un bajo mantenimiento del mismo.