VIVIENDA EN HORTALEZA

  • UBICACIÓN MADRID
  • FECHA 2018
El proyecto recoge la demolición del edificio existente para la construcción de una vivienda unifamiliar. El edificio existente se compone de un cuerpo de una sola planta, retranqueado 3,36 m de la calle y de profundidad de entre  7,57 y 10,83 m, y de un almacén de 3,75m de profundidad anexo a la medianera Este de la parcela. 

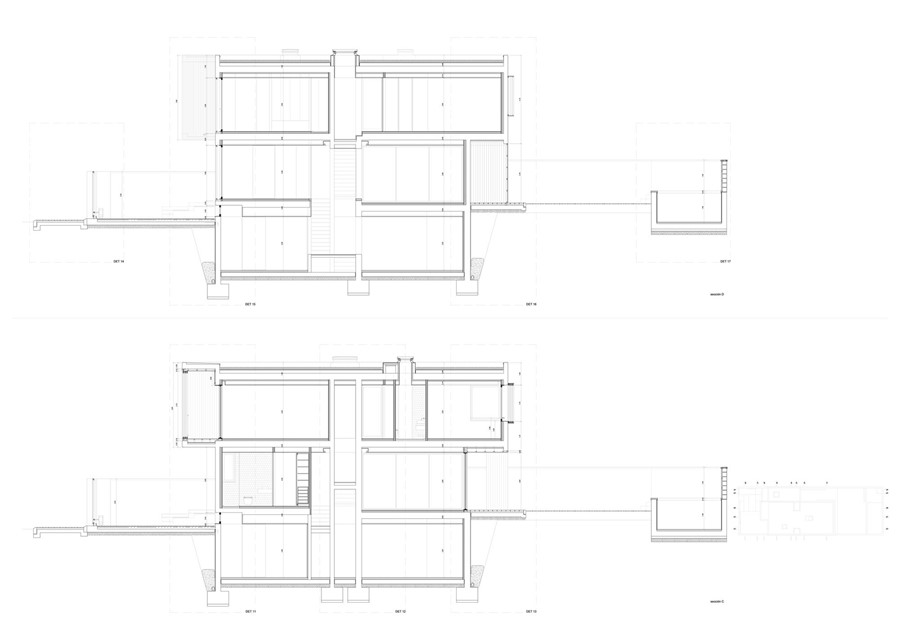
La nueva edificación se organiza en planta sótano, planta baja y planta primera. Se propone un sólo volumen adosado en sus tres plantas a su medianera a Sur con el edificio medianero y alineado con su fachada a calle; a Norte se adosa en planta baja un tramo de su fachada. El retranqueo respecto a la calle de acceso es de 4,45 m en su saliente de planta primera y 6,00 m en el resto de fachada, coincidiendo con el plano de fachada del edificio existente en la medianera sur de la misma calle. La separación a lindero testero es de 10,22 m en la crujía de mayor profundidad.

El programa se ajusta a las necesidades de la Propiedad:

SÓTANO
Ocupa 107,32 m2 de la superficie de la parcela, y alberga bodega/trastero, cuarto de invitados, instalaciones y baño. También tiene un tragaluz coincidente con el cuarto de invitados que garantiza su iluminación y ventilación.
PLANTA BAJA
Se accede al edificio a través del patio delantero, donde se ubica la zona de aparcamiento y una terraza / jardín. En el interior se encuentran cocina, cuarto de invitados / despacho, baño y salón-comedor. Porche, piscina y jardín están en el patio trasero.  
PLANTA PRIMERA
En ella se distinguen tres dormitorios, dos baños, vestidor y terraza a calle.
CUBIERTA
La cubierta general del edificio es plana, no transitable, del denominado tipo “invertida”, y en ella se sitúa diversas instalaciones comunes al edificio:
-Colectores solares
-Bancadas para condensadoras de climatización
-Ventilación mecánica
El acceso a la cubierta se hace mediante escalera auxiliar desde la planta inferior.