VIVIENDA "ROMERODRÍGUEZ"

  • UBICACIÓN MADRID
  • FECHA 2012
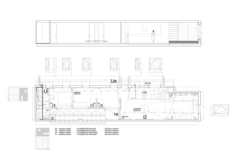
Reestructuración integral de una vivienda sita en la calle Vallehermoso de Madrid destinada a una familia formada por una pareja con dos niños pequeños.

La principal dificultad con la que nos encontramos fue su esquema de casa "tubo" con un solo hueco a calle. Su geometría larga y estrecha, y su gran fraccionamiento, la oscuridad y la falta de ventilación naturales.

El trabajo consistió en generar un espacio fluido que conecta ese hueco exterior con el mayor número de estancias de la casa. Vestíbulo, cocina, comedor, sala de estar, el distribuidor donde se ha proyectado en un gran armario que libera a los pequeños dormitorios de esta dotación que se ha complicado enormemente su amueblamiento y uso, y los envíos son conforman este espacio fluido que resuelve todas las necesidades planteadas por Los propietarios Las normales paredes de partición fija se sustituyen por las particiones móviles que permiten el uso diferenciado del espacio fluido cuando es necesario. En el justo equilibrio entre la privacidad de cada espacio individual y la fluidez del espacio grande se concentra todo nuestro esfuerzo proyectual.

En resumen, todos los esfuerzos de diseño se han dirigido a conseguir que desde todas las estancias de la casa se puede sentir la atmósfera exterior.