VIVIENDA SOTO DEL REAL

  • UBICACIÓN Soto del Real. Madrid
  • FECHA 2015
  • EN COLABORACIÓN CON Francisco Domouso
  • FOTOGRAFÍA Ángel Álvarez

Se trataba de proyectar una vivienda unifamiliar de programa convencional destinada a una pareja con dos hijos en una parcela propia de una urbanización residencial típica de la sierra madrileña, un entorno sin cualificación alguna.

En este sentido decidimos dotar de una pieza identificable a este desordenado, o mejor dicho heterogéneo, ámbito de ciudad suburbial sin ningún interés arquitectónico.

Como escribió Moreno Galván: “Los edificios se hacen para una finalidad determinada. Pero la arquitectura se hace desde una situación, un entendimiento de las cosas, una imagen del mundo”.

La escala del edificio, así como la imposibilidad de proponer espacios de carácter público que generasen relaciones entre los mismos, hizo que dirigiéramos nuestra propuesta hacia el diseño de una pieza de fuerte presencia geométrica, ensimismada, capaz de afirmar su presencia frente a los desatinos heterogéneos residenciales de los alrededores.

Su estricta geometría, pensada en términos de organización clara, sirve para diseñar cuerpos precisos y puros, conformando una entidad absoluta. La arquitectura propuesta, lejos de formalismos fatuos y utopías inalcanzables, procura ser coherente con su imagen final, sin perder la dimensión humana que la relacionará con sus habitantes. Buscamos obtener una unidad arquitectónica esquemática, lisa.

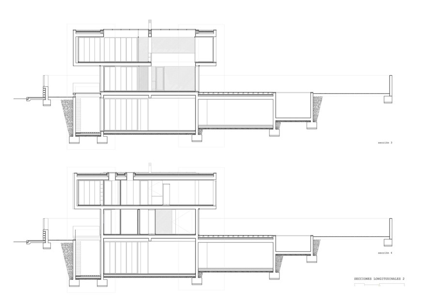
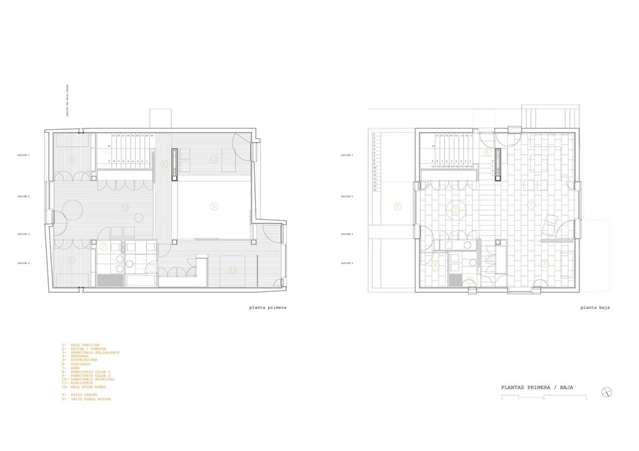
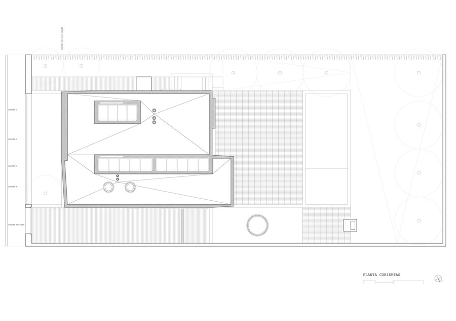
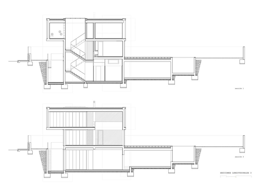
La práctica nos lleva a concretar el diseño de la planta en un edificio austero, un programa simple y resuelto de una manera realista. El edificio consta de planta sótano, baja y primera. La claridad tipológica y constructiva del proyecto se convierte en su principal virtud. Se resuelve a un mismo tiempo la implantación y el volumen del conjunto con una gran economía de recursos. De la misma manera, la homogeneidad de los materiales empleados, la sencillez de la composición de las fachadas y la agrupación distributiva de los servicios contribuyen a definir la simple pero eficaz ejecución del edificio.

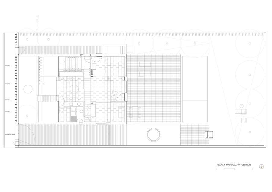
La distribución interior del tipo de vivienda desarrollado se resuelve optimizando la superficie de cada pieza habitable, agrupando los núcleos sanitarios y eliminando en lo posible la pérdida de espacio en pasos y vestíbulos. Este núcleo fijo sanitario facilita la posibilidad de variar y/o ampliar ciertas piezas de la vivienda, suprimiendo los tabiques de separación.Por ello se ha optado por un sistema estructural de losas sobre muros y pilares de hormigón armado. La comunicación directa entre las distintas estancias colindantes aporta flexibilidad al uso de la vivienda, permitiendo múltiples relaciones y circulaciones entre las mismas.

Un patio inglés nos permite el acceso, y la iluminación y ventilación directa de la planta sótano. La planta primera avanza en voladizo sobre el patio, a modo de techo, colaborando en la definición de sus límites, cualificándolo  como una estancia más.

El diseño de las zonas exteriores constituye una preocupación prioritaria en nuestra propuesta. Su diseño se cuida especialmente: entendemos que en estos se desarrollará parte del hábitat comunitario, las relaciones  vecinales y queremos favorecerlas.

Frente a las restricciones tipológicas que impone la normativa, el programa y el presupuesto se elige la abstracción como estrategia compositiva en los alzados.