VIVIENDA TIPO PROMOCIÓN ALICANTE

  • UBICACIÓN ALICANTE
  • FECHA 2018
  • PROMOTOR AEDAS HOMES

Se ha adoptado una tipología básica que nace de una lógica funcional y programática aportada por nuestro cliente.

La disposición de las viviendas atiende primordialmente a proporcionarles las mejores condiciones de habitabilidad. Se ha buscado una matriz que sirviera para el desarrollo de cada una de las viviendas de modo que todas fueran semejantes. De esta manera todas las viviendas se parecen, pensamos que esta sistematización es un acierto que minimizará plazos y costes. Todas las viviendas son exteriores, buscando las mejores condiciones de asoleamiento y ventilación. La distribución de las mismas es convencional. No olvidamos, que en estos casos el receptor final de la vivienda es genérico, y de esperables usos convencionales.

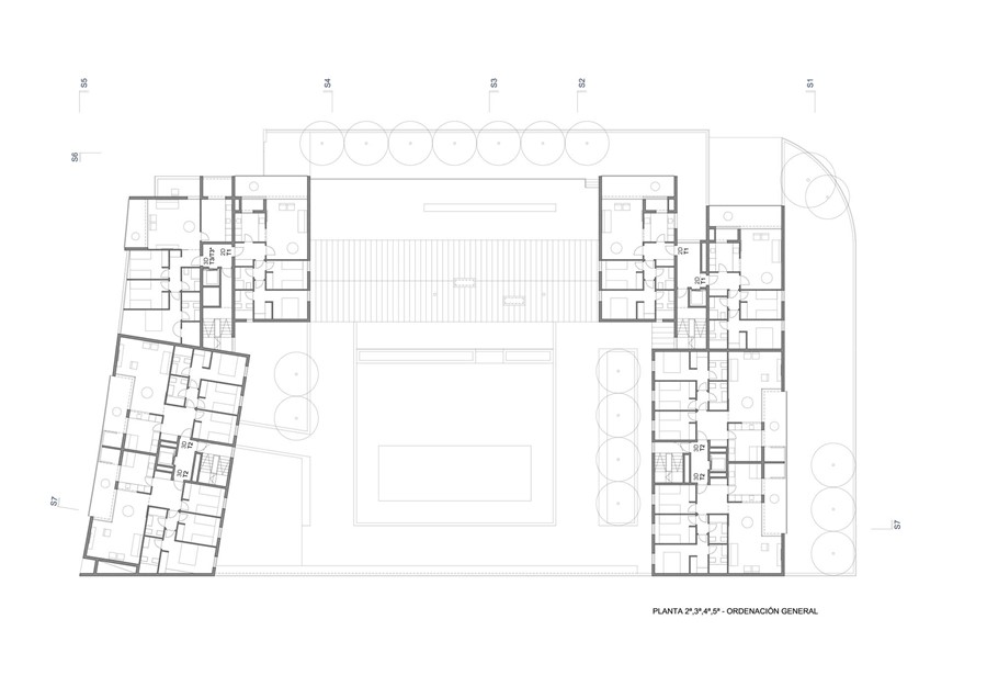
Se disponen dos viviendas por núcleo vertical de comunicación.

Las viviendas del núcleo 1 tienen orientación norte-sur buscando las mejores condiciones de asoleo y ventilación. Sus accesos y baños se sitúan en la parte central del bloque. Hemos preferido en éste caso que sus dormitorios se agrupen en la fachada sur, hacia el interior de la manzana y las áreas públicas, estando las salas de estar y cocinas, en la fachada norte, abriendo sus vistas hacia el parque, verdadero leitmotiv del PAU-1. Señalamos aquí el carácter reversible de este bloque 1 en caso de preferir la orientación a levante de su zona de día Las viviendas del núcleo 4 también de orientación norte-sur y misma distribución orientan su zona de día a levante.

Las viviendas de los núcleos 2 y 3 se desarrollan según un esquema que agrupa las zonas húmedas en una especie de “muro grueso” formado por baños, cocinas, vestíbulos y escaleras que aísla las zonas servidas de la vivienda de las zonas comunes del edificio y que permite la flexibilidad de los espacios servidos.

Las terrazas lineales a lo largo de cada frente de generosas dimensiones propuestas por Aedas prolongan los espacios de las viviendas y filtran el sol y la luz al interior de estas.

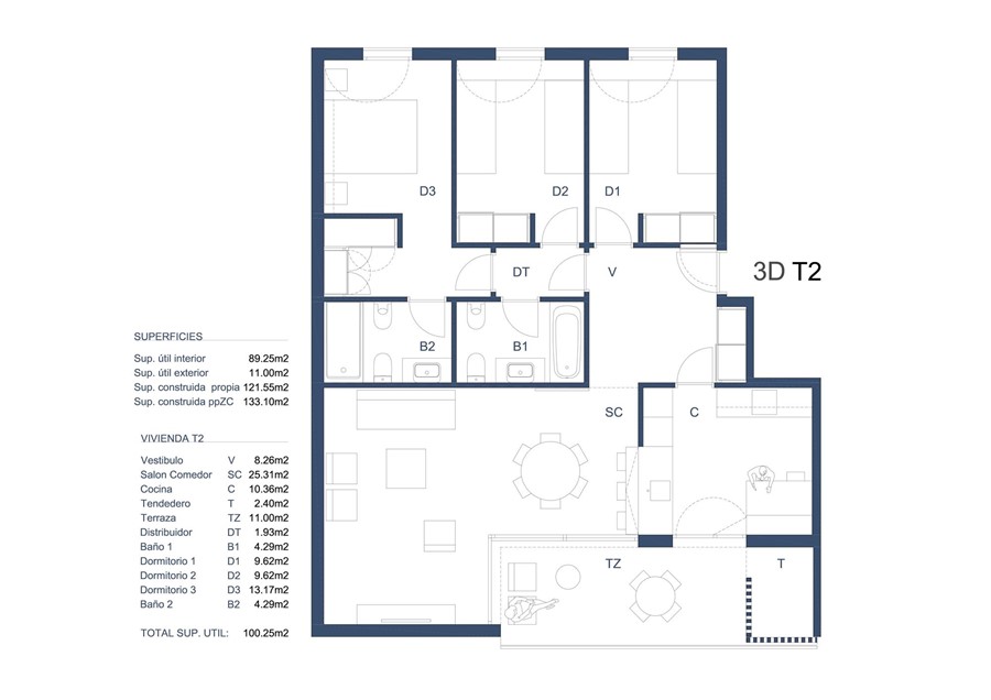
El dormitorio principal de todas las viviendas proyectadas cuenta con baño y vestidor incorporado. Los tipos elegidos permiten, además de obtener las ventajas derivadas de su sencillo esquema funcional, posibilidades múltiples de adaptarse en lo que a los cambios de programa se refiere. Hemos tratado de optimizar las superficies requeridas mediante la introducción del concepto de adaptabilidad de la vivienda a diferentes usos mediante:

1. Elección de la tipología de dos viviendas por rellano que posibilita acceder por el centro geométrico de su superficie.

2. Situar la estructura portante en los bordes medianeros entre viviendas y en el núcleo fijo de instalaciones, para posibilitar todo tipo de variación de los tabiques en función de las necesidades de los ocupantes tanto en la “zona día” como en la de “noche”

3. Situar los servicios sanitarios en la zona central. Los baños se agrupan conformando núcleos bien distribuidos,  compartiendo instalaciones de saneamiento.

4. Tratamiento de los espacios en los que se divide la vivienda de forma que se puedan integrar de distintas maneras entre ellos.

5. Disposición lateral del tendedero, recuperando así un espacio “noble” de la casa que es el sector cocina que da así a la fachada deforma directa, y facilita su incorporación abierta a la sala de estar-comedor.

Oficio, eficacia en la organización de los espacios y de las soluciones constructivas, la propuesta tiende a la sistematización, a la métrica ajustada, a la economía de medios…

Proporción, ritmo y contraste buscan la necesaria calidad visual.