R. I. "CASA DE LAS FLORES"

  • UBICACIÓN Madrid
  • FECHA 2011
  • EN COLABORACIÓN CON Francisco Domouso

El proyecto supone el reto de enfrentarse a la reestructuración de una vivienda de uno de los edificios de viviendas más emblemáticos de la historia de la arquitectura de Madrid como es “La Casa de las Flores” del arquitecto Secundino Zuazo, autor de obras como los Nuevos Ministerios o el Palacio de la Música.

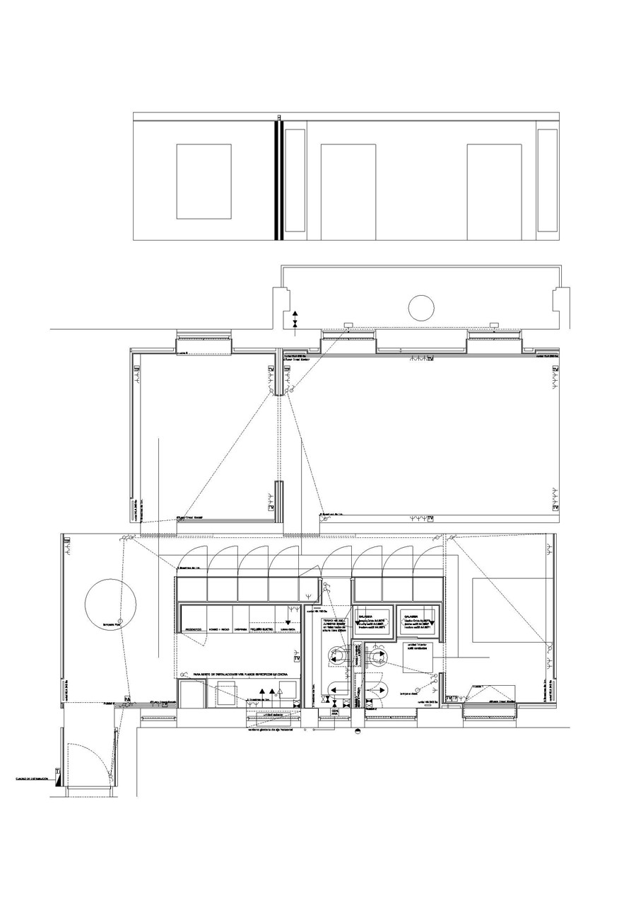
La propuesta respeta en gran medida la distribución existente.La eliminación de un tabique de separación entre estancias, y  la nueva disposición y diseño  de huecos realizados de suelo a techo,  supone dotar a la vivienda de una cualidad espacial más acorde con las necesidades de nuestro tiempo (continuidad y flexibilidad entre usos diferenciados).

Una caja compacta revestida de madera guarda en su interior todo el programa destinado a espacios servidores y de almacenamiento, liberando el resto de la superficie de la vivienda.