VIVIENDA EN MADRID CENTRO

  • UBICACIÓN MADRID
  • FECHA 2015

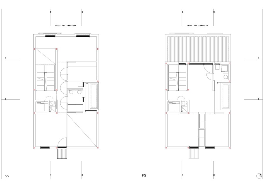
El proyecto recoge la reestructuración integral y ampliación de un edificio de viviendas existente para adaptarlo a una vivienda unifamiliar. El edificio existente forma parte de un conjunto de 4 viviendas protegido con grado de catalogación parcial, por lo que se rehabilitó la fachada catalogada a su estado original enfatizándose el contraste de esta con la ampliación propuesta, de manera a dar adecuada respuesta a lo informado por la CIPHAN.

La nueva edificación se ciñe a la huella del edificio existente, respetando el patio de luces existente con el edificio colindante.

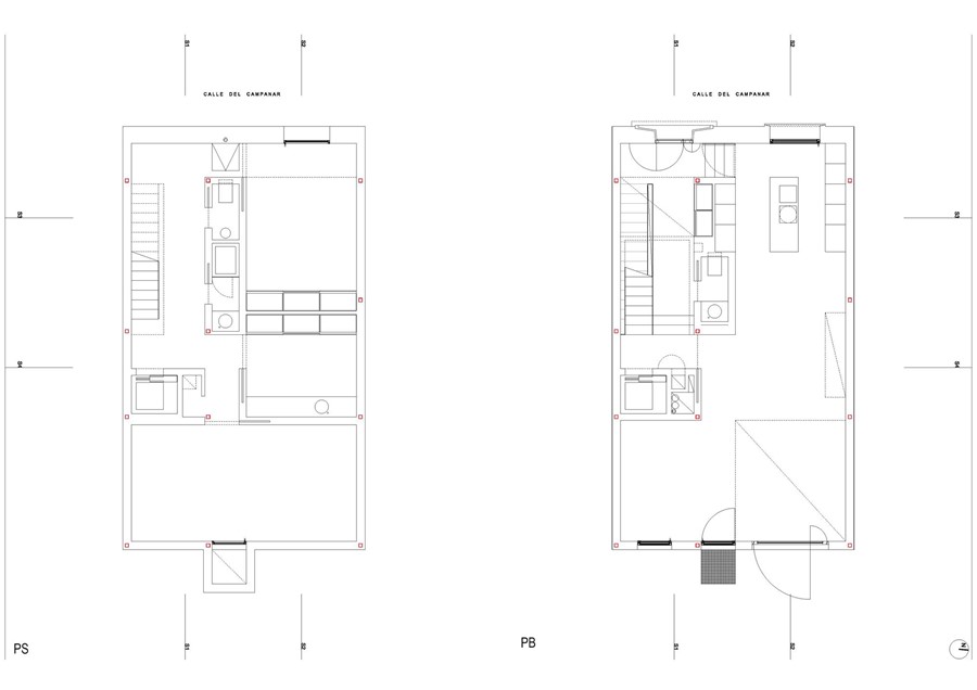
Sobre la planta baja se construyen tres plantas de uso residencial, la 2ª y 3ª retranqueadas con respecto a la calle del Campanar.

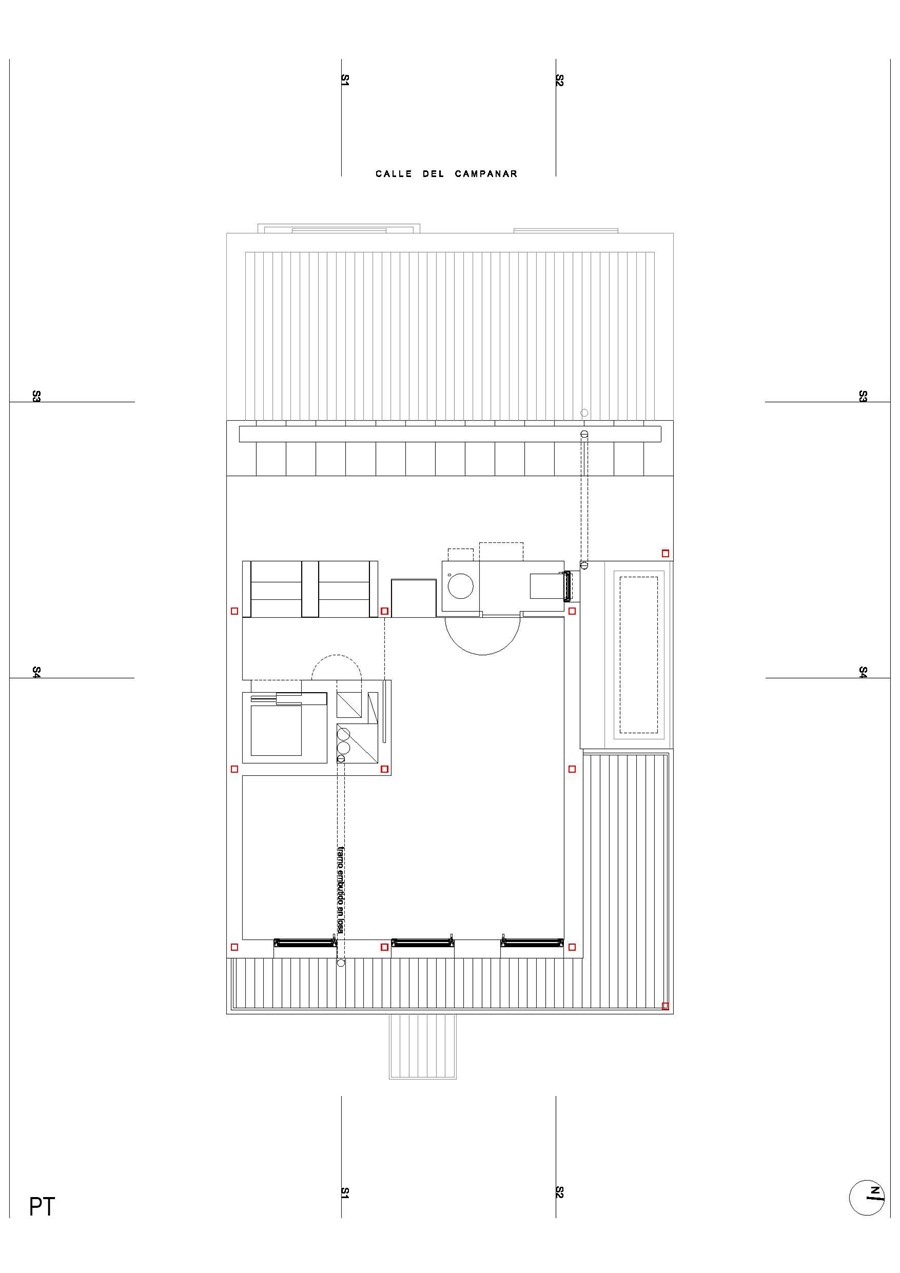
La cubierta se ajusta a lo indicado por la CIPHAN y soporta el equipamiento de captación de energía solar. En la planta bajo rasante se ubica un sótano destinado a instalaciones.

El programa se ajusta a las necesidades de la propiedad. La situación de la escalera y del ascensor instalado permite el recorrido de todas las plantas de la vivienda sin interferir en la privacidad de los usuarios de la misma.

La vivienda cuenta con un patio posterior para estar, cerrado por muros y cubierto por la copa de un árbol. En él se ha instalado una alberca.